Vente
Maison
à
Cherisy
624 000 €
Cherisy (28500)
iad France - Julie Toussaint vous propose: Authentique demeure du XIXe siècle située à Cherisy, offrant 11 pièces dont 5 chambres, et un terrain clôturé et arboré de près de 3400m2. Vidéo disponible.
Bienvenue dans cette ravissante bâtisse, nichée dans un hameau tranquille de la commune très recherchée de Cherisy, avec un accès rapide à la N12 et à proximité de toutes les commodités telles que les commerces, les écoles et les transports en commun. Vous rejoindrez St Quentin en Yvelines en seulement 28 minutes en voiture et Paris porte de Saint-Cloud en 45 minutes.
Cette propriété, à la jolie façade et aux volumes généreux, comprend :
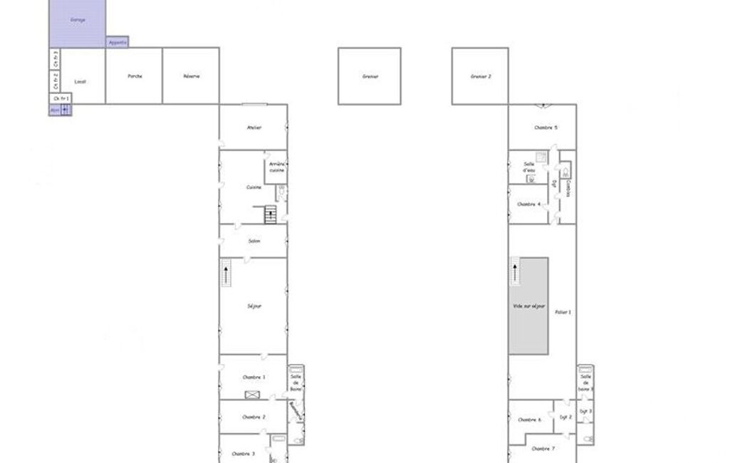
Au rez-de-chaussée : vaste entrée, double séjour de 46 m² avec cheminée insert, salle à manger donnant sur une véranda de 24 m², grande cuisine dinatoire de 32m2 et arrière-cuisine, bureau de 21 m², une chambre avec rangements et une salle de bains attenante avec WC, une autre salle de bains, WC indépendant, et un atelier chauffé de 24 m² pouvant avoir un autre usage (situé derrière la cuisine).
A l’étage : l’escalier en bois massif nous donne l’accès à la mezzanine faisant office d’une jolie salle de billard, puis 4 chambres, une salle d’eau, une salle de bains, et 2 WC séparés.
Vous tomberez sous le charme des extérieurs : avec un joli jardin clos arboré de 3 357 m², une terrasse de 40 m², un garage motorisé de 30 m², un local avec chambre froide, cave, bûcher, remises, abris de jardin.
Informations techniques : DPE C, pompe à chaleur air/eau (2023), chauffe-eau thermodynamique, un tableau électrique remis aux normes, tout à l’égout, fibre optique. Des travaux de rafraichissements sont à prévoir.
Les atouts de cette jolie propriété sont nombreux : sa localisation, sa jolie façade, DPE C, pompe à chaleur, les volumes : de beaux espaces de vie & des chambres spacieuses, les annexes, le jardin.
Bien rare, idéal grande famille, résidence secondaire ou pour un projet de maison d’hôtes !
Avis aux confrères, je pratique l’interagence, contactez-moi pour organiser une visite avec vos clients.
Honoraires d'agence à la charge du vendeur.
Information d'affichage énergétique sur ce bien : classe ENERGIE C indice 143 et classe CLIMAT A indice 4. Les informations sur les risques auxquels ce bien est exposé, y compris l'obligation légale de débroussaillement, sont disponibles sur le site Géorisques : http://www.georisques.gouv.fr.
La présente annonce immobilière a été rédigée sous la responsabilité éditoriale de Mme Julie Toussaint mandataire indépendant en immobilier (sans détention de fonds), agent commercial de la SAS I@D France immatriculé au RSAC de CHARTRES sous le numéro 908025901, titulaire de la carte de démarchage immobilier pour le compte de la société I@D France SAS.
Mandat : 1776087
Diagnostic de Performance Énergétique (DPE)
Plus d'informations
-
Descriptif
- Terrasse
- Nbre. d'étages : 2
- Nbre. de chambres : 5
- Nb. de pièces : 11
-
Superficies
- Surface terrasse : 40 m²
- Superficie terrain : 3357 m²
- Surface habitable : 381 m²
-
Etat
- Année de construction : 1875
-
Conditions
- Honoraires à charge de : vendeur
Localisation
Contactez nous
Pour plus d'informations sur cette annonce, n'hésitez pas à nous contacter