Vente
Propriété
à
Cannes
6 950 000 €
Cannes (06400)
Située sur les hauteurs du Cannet, tout proche de Cannes, Brothers a le plaisir de vous proposer ce magnifique projet de villa contemporaine : la Villa Auguste.
- Permis accordé et purgé de tous recours ;
- Surface de 923m2.
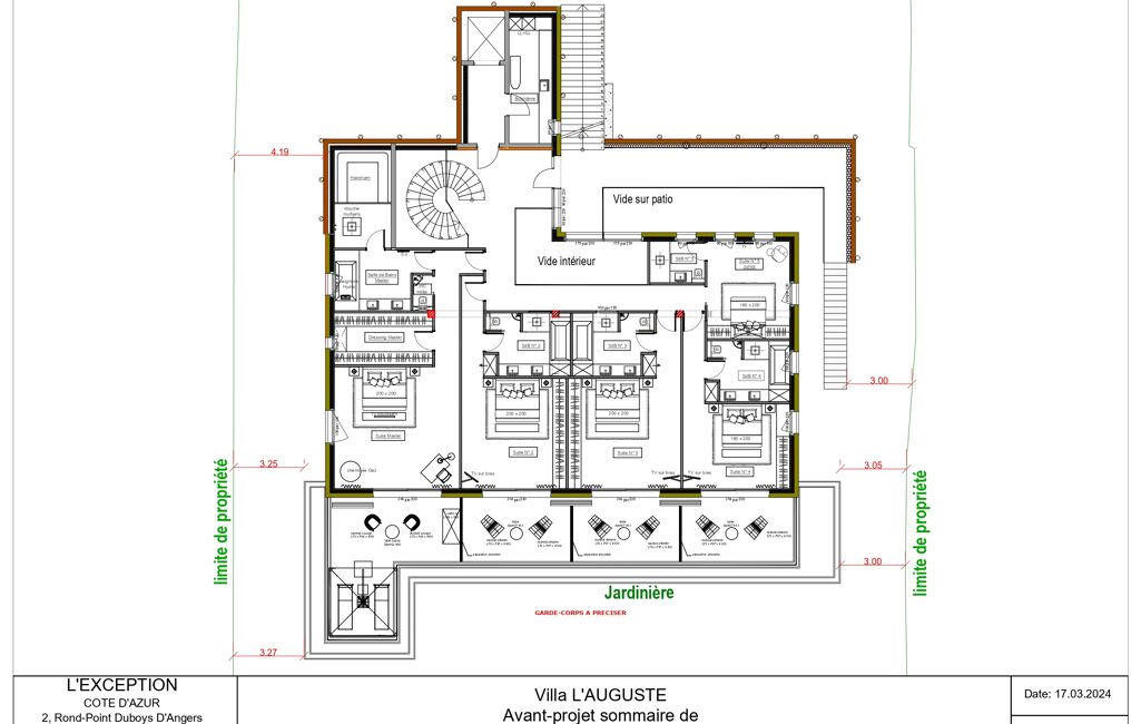
Composé de trois niveaux :
o Niveau nuit de 260m2 comprenant une Master bedroom vue mer de 70m2, trois chambres en suite avec terrasse et vue mer et une chambre junior.
o Niveau de vie de 327m2 comprenant un immense espace cuisine, salon, bar, cave à vin, le tout ouvert sur l'espace piscine et son pool-house et bénéficiant d'une splendide vue mer.
o Niveau bien-être de 336m2 comprenant deux chambres en suite, piscine chauffée de 8x4m, salle de sport, salle cinéma et espace massage.
- Jardin intérieur d'environ 65m2 avec plafond en toute hauteur depuis le niveau nuit et ses puits de lumières et son mur d'eau ;
- Piscine extérieure chauffée à débordement de 15m x 5,2m et sa terrasse d'environ 175m2.
- Rooftop de 140m2 environ avec une époustouflante vue sur la baie de Cannes et la mer ;
- Ascenseur desservant tous les niveaux (dont le rooftop et le garage) ;
o 2 accès à la propriété :
- Garage sur voirie pour 2 véhicules et 4 motos ;
- Carport pour 2 véhicules et possibilité de stationner 2 ou 3 véhicules en plus.
o Autre :
- Terrain en restanques de 2 232m2 ;
- Vue panoramique sur la mer et la baie de Cannes ;
- Exposition Sud-Ouest ;
- Environnement résidentiel de prestige et calme en impasse composé de 5 villas ;
- Probablement l'un des derniers permis de cette ampleur accordé sur ce secteur (futur passage au PLU).
o Actuellement sur le terrain :
Belle villa traditionnelle de 220 m2 avec 4 chambres et piscine.
N'hésitez pas à nous contacter afin d'en savoir davantage.
Diffuze : votre prestataire de diffusion d'annonces immobilières
Mandat : 136-72d3eb12
Diagnostic de Performance Énergétique (DPE)
Plus d'informations
-
Descriptif
- Cave
- Balcon
- Garage
- Meublé
- Nb. de salles de bain : 7
- Parking
- Terrasse
- Ascenseur
- Nbre. d'étages : 3
- WC séparés
- Nbre. de chambres : 7
- Nb. de pièces : 8
-
Equipement
- Cuisine : Equipée
- Climatisation
-
Superficies
- Superficie terrain : 2232 m²
- Surface habitable : 923 m²
-
Environnement
- Calme
-
Extérieur
- Piscine
-
Conditions
- Honoraires à charge de : vendeur
Localisation
Contactez nous
Pour plus d'informations sur cette annonce, n'hésitez pas à nous contacter