Vente
Appartement
à
Genas
549 000 €
Genas (69740)
iad France - Marjory LOMAS (06 69 65 54 40) vous propose : À Genas, certains biens remplissent une liste de critères...
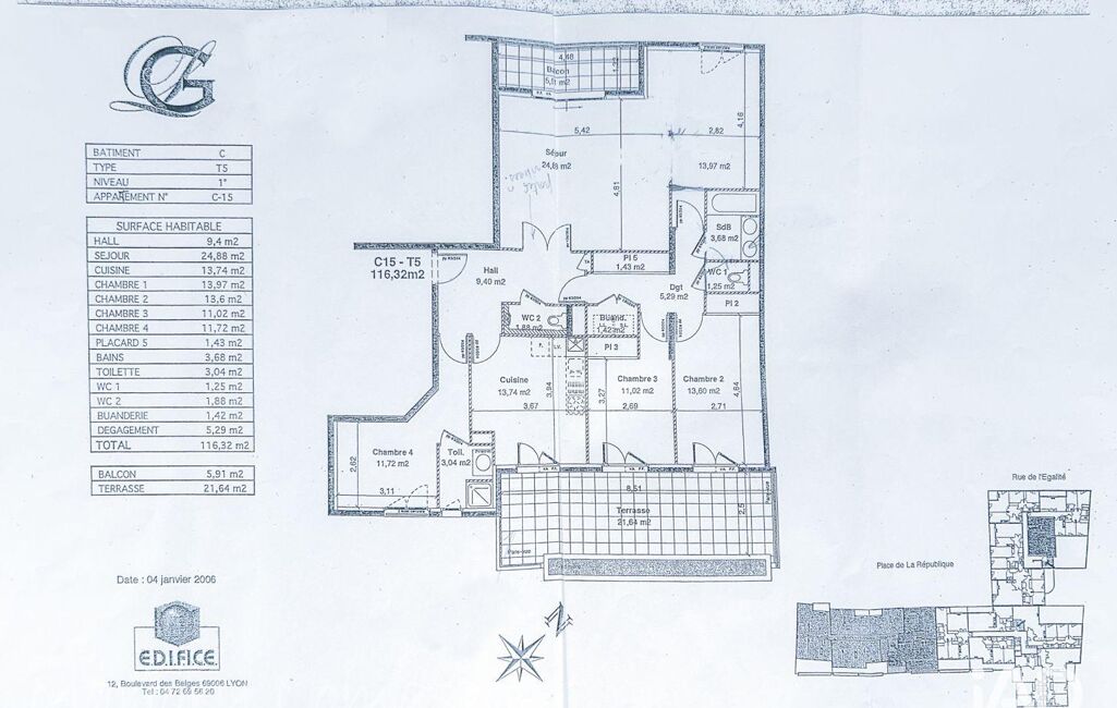
Et puis il y a ceux qui déclenchent quelque chose de plus rare : une vraie évidence. Ici, il s’agit d’un appartement T5 de 116 m² environ qui conjugue espace, lumière et qualité de vie.
Dès l’entrée, la lumière circule et donne une atmosphère vivante et chaleureuse à l’ensemble du logement.
Le séjour spacieux s’ouvre sur une loggia, parfaite pour profiter d’un moment au soleil, d’un café ou simplement d’une pause à l’air libre.
Sur l'autre versant, la cuisine et les chambres prolongent l’expérience avec une véritable terrasse. Un espace extérieur plus intime, pensé pour les repas d’été, les moments partagés ou les instants détente en fin de journée.
Le tout dans un environnement privilégié : commerces, transports et services accessibles à pied. Une vie de quartier vivante et facile au quotidien, sans jamais renoncer à la tranquillité d’une résidence moderne, sécurisée et parfaitement entretenue.
Côté nuit, les espaces sont intelligemment séparés pour préserver l’intimité de chacun. D’un côté, une suite parentale avec sa salle d’eau privative offre un véritable cocon indépendant. De l’autre, deux chambres supplémentaires se partagent une salle de bain avec WC ainsi qu’une buanderie fonctionnelle. Un WC indépendant avec lave-mains complète cet ensemble. L’organisation est fluide, équilibrée, et pensée pour le confort du quotidien de toute la famille.
Un garage double fermé en sous-sol ainsi qu'une cave complètent ce bien.
Prestations :
- Chaudière gaz individuelle, Climatisation réversible
- DPE classé C
- Volets roulant électriques dans tout l'appartement
- Store banne électrique sur la terrasse
Ce n’est pas seulement un appartement fonctionnel. C’est un lieu où l’on se projette sans effort, où l’on se sent bien immédiatement, où chaque espace a du sens.
À ce stade, il ne reste qu’à pousser la porte... contactez-moi vite !
La présente annonce immobilière vise 1 lot principal situé dans une copropriété formant 60 lots au total ne faisant l'objet d'aucune procédure en cours et d'un montant de charges d’environ 162.99 € par mois (soit 1955.88 € annuel) déclaré par le vendeur.Honoraires d’agence à la charge du vendeur.Information d'affichage énergétique sur ce bien : classe ENERGIE NS indice et classe CLIMAT NS indice . Les informations sur les risques auxquels ce bien est exposé sont disponibles sur le site Géorisques : www.georisques.gouv.fr. La présente annonce immobilière a été rédigée sous la responsabilité éditoriale de Mlle Marjory LOMAS EI (ID 65535), mandataire indépendant en immobilier (sans détention de fonds), agent commercial de la SAS I@D France immatriculé au RSAC de Lyon sous le numéro 909504888, titulaire de la carte de démarchage immobilier pour le compte de la société I@D France SAS. Le présent bien est commercialisé dans le cadre d'une délégation de mandat.
Retrouvez tous nos biens sur notre site internet. www.iadfrance.fr
Mandat : 2004472
Plus d'informations
-
Descriptif
- Cave
- Étage du bien : 1er
- Terrasse
- Ascenseur
- Nbre. d'étages : 3
- Nbre. de chambres : 3
- Nb. de pièces : 5
-
Equipement
- Digicode
- Placards
- Chauffage : individuel gaz radiateur
- Interphone
- Climatisation
-
Loi ALUR
- Copropriété
- Nombre de lots de la copropriété : 241
- Moyenne de la quote part(an) : 1 955.88 €
-
Etat
- Année de construction : 2006
-
Conditions
- Honoraires à charge de : vendeur
-
Superficies
- Surface habitable : 116 m²
Localisation
Contactez nous
Pour plus d'informations sur cette annonce, n'hésitez pas à nous contacter