Vente
Maison
à
Limay
353 000 €
Limay (78520)
iad France - Juliana Pereira Reis vous propose: Belle demeure bourgeoise de caractère à restaurer entièrement située à Limay dans un quartier calme et résidentiel idéal pour investisseur.
Certes des travaux conséquents sont à prévoir mais possibilité de créer plusieurs habitations en plus de la maison principale, idéal pour une grande famille , profession libérale avec entrée indépendante ou investissement locatif.
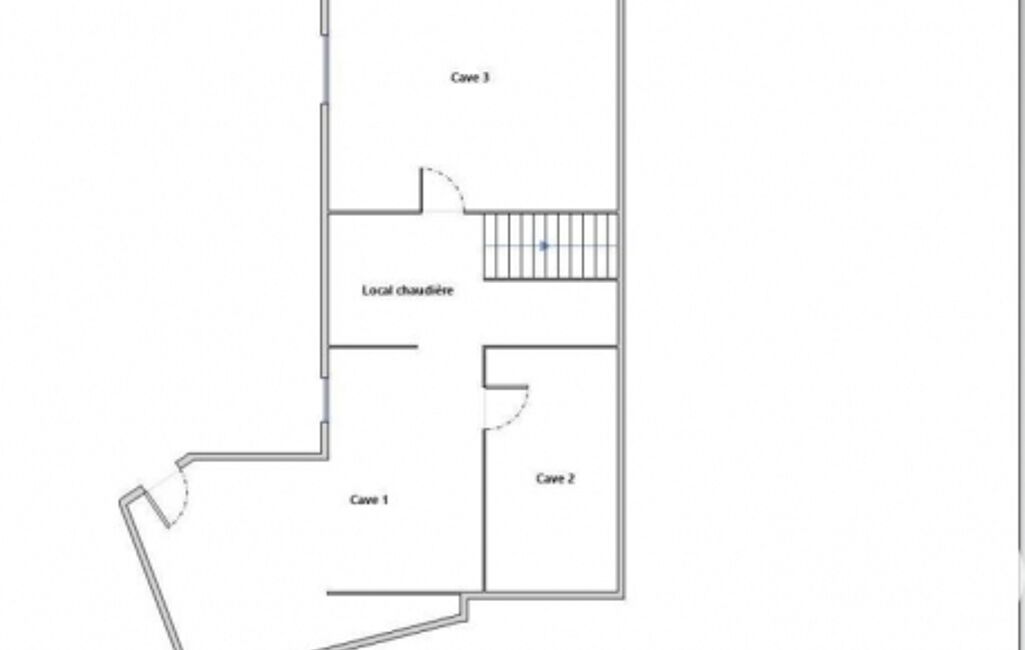
Les plans du bien sont annexées dans l'annonce car effectivement ce bien vous offre 248m2 habitables réparties sur plusieurs niveaux .
Ce bien comporte deux entrées différentes et un garage .
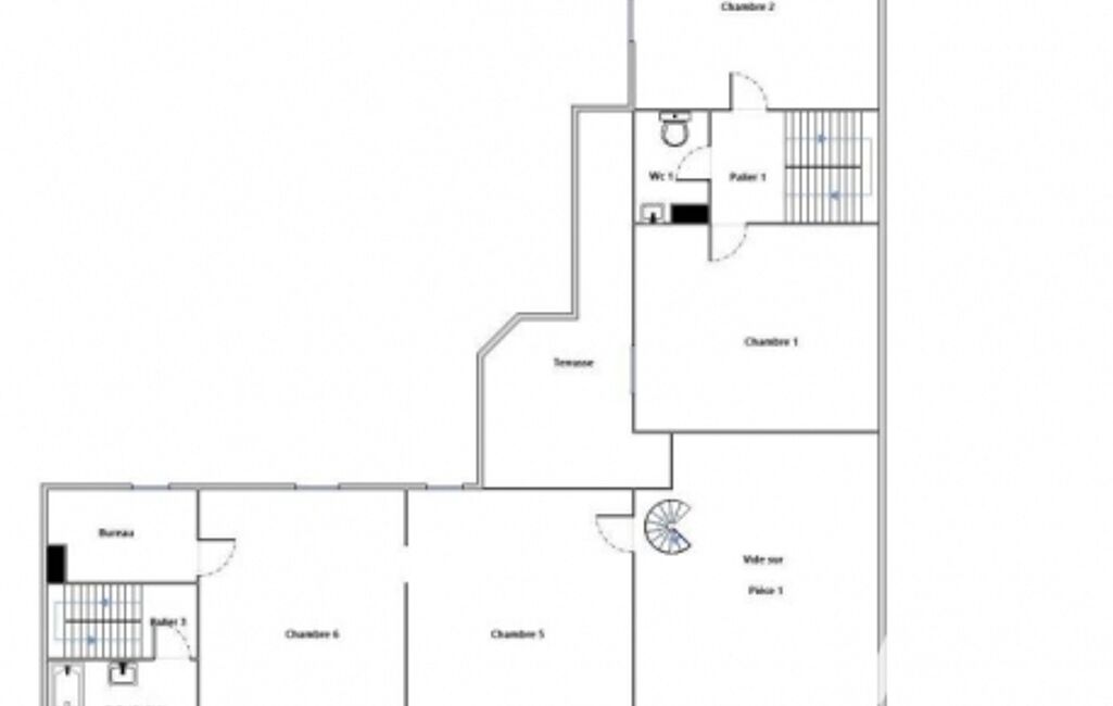
La maison principale ce compose d'une entrée avec séjour à gauche , cuisine et salle d'eau avec wc à droite . 1 er étage , deux chambres dont une avec une agréable terrasse et Wc indépendant. Au 2 -ème deux autres chambres avec de beaux volumes et très lumineuses.
Pour la deuxième partie de la maison vous trouverez un immense hall de plus de 45m2 avec une cheminée authentique et un escalier en vous mène à une mezzanine.
Troisième partie de la maison : un appartement en duplex composé d'une cuisine et wc en rdc avec accès jardin , et une chambre avec salle de bain qui rejoint la partie Mezzanine .Cette demeure contient également 3 caves et un local chaudière( Fioul). Ce bien est à voir absolument .
Pour visiter merci de me contacter par téléphone et dossier financier exigé avant visite.
Honoraires d'agence à la charge du vendeur.
Information d'affichage énergétique sur ce bien : classe ENERGIE G indice 470 et classe CLIMAT G indice 103. Les informations sur les risques auxquels ce bien est exposé, y compris l'obligation légale de débroussaillement, sont disponibles sur le site Géorisques : http://www.georisques.gouv.fr.
La présente annonce immobilière a été rédigée sous la responsabilité éditoriale de Mme Juliana Pereira Reis mandataire indépendant en immobilier (sans détention de fonds), agent commercial de la SAS I@D France immatriculé au RSAC de Versailles sous le numéro 882655848, titulaire de la carte de démarchage immobilier pour le compte de la société I@D France SAS.
Mandat : 1932577
Diagnostic de Performance Énergétique (DPE)
Plus d'informations
-
Descriptif
- Nbre. d'étages : 2
- Nbre. de chambres : 8
- Nb. de pièces : 11
-
Equipement
- Cheminée
- Chauffage : fuel radiateur
-
Superficies
- Superficie terrain : 606 m²
- Surface habitable : 248 m²
-
Etat
- Année de construction : 1948
-
Conditions
- Honoraires à charge de : vendeur
Localisation
Contactez nous
Pour plus d'informations sur cette annonce, n'hésitez pas à nous contacter