Vente
Appartement
à
Courbevoie
850 000 €
Courbevoie (92400)
iad France - Julien Siegfried vous propose: Dernier étage – Vue dégagée sur La Défense – 3 chambres (4 possibles) – 2 parkings (dont 1 box) + 2 caves – DPE : C – Aucuns travaux à prévoir
En coeur de ville, à proximité immédiate du métro, de La Défense, des commerces, des écoles et de la gare de Courbevoie, découvrez ce superbe appartement familial situé au 12ème et dernier étage d’une résidence récente, à taille humaine, de 1989, sécurisée et parfaitement entretenue avec gardien.
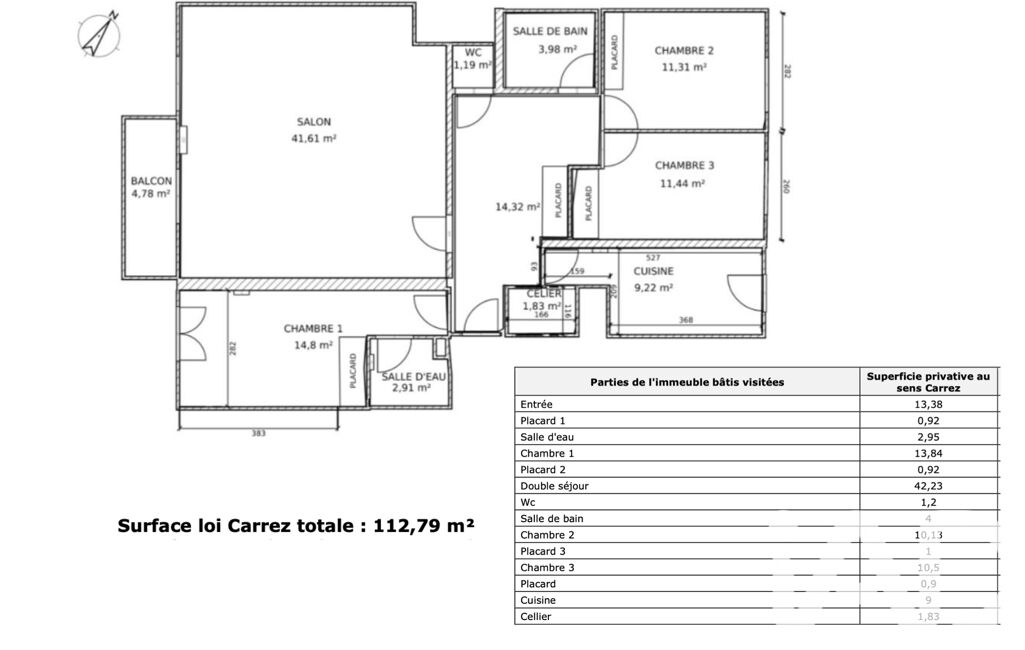
Dès l’entrée, vous serez séduit par les volumes généreux de ce 5 pièces de 113 m², baigné de lumière grâce à son exposition Sud-Ouest. Le séjour double de plus de 42 m², prolongé par un balcon plein ciel, invite à la détente face à un panorama dégagé, sans vis-à-vis, sur la Skyline de La Défense.
La cuisine récente indépendante, aménagée et équipée, est à la fois spacieuse et fonctionnelle. Un cellier permet d’optimiser l’espace, offrant une zone supplémentaire de stockage. Côté nuit, trois belles chambres (avec rangements) dont une suite parentale avec salle d’eau privative, une salle de bains et des WC séparés complètent cet espace parfaitement agencé.
Besoin d’une quatrième chambre ? Le séjour le permet aisément, sans compromis sur le confort.
L’appartement a été rénové et aucuns travaux n’est à prévoir.
Côté prestations : climatisation réversible, porte blindée, fibre optique, résidence sécurisée avec gardien, double vitrage, volets roulants électriques et un excellent DPE : C garantissant à la fois confort et économies.
Et pour parfaire le tout : deux caves, un parking et un box complètent ce bien d’exception.
En quelques minutes, vous rejoignez La Défense, les transports (métro ligne 1, gare de Courbevoie, nombreuses lignes de bus) et toutes les commodités du quotidien. La Défense Arena est également accessible à pied !
Un emplacement de choix, un cadre agréable et un appartement prêt à accueillir ses nouveaux propriétaires… Ne laissez pas passer cette opportunité ! CONTACTEZ-MOI DÈS AUJOURD’HUI pour en savoir plus et organiser une visite. Je suis disponible 7j/7 pour répondre à toutes vos questions.
La presente annonce immobiliere vise 6 lots situés dans une copropriété de 181 lots au total et ne faisant l'objet d'aucune procédure en cours citée à l'article L. 721-1 du code de la construction et de l'habitation. Montant moyen mensuel de charges déclaré par le vendeur : 290.74€ par mois (soit 3488.88 € annuel). Honoraires d'agence à la charge du vendeur.
Information d'affichage énergétique sur ce bien : classe ENERGIE C indice 154 et classe CLIMAT A indice 4. Les informations sur les risques auxquels ce bien est exposé, y compris l'obligation légale de débroussaillement, sont disponibles sur le site Géorisques : http://www.georisques.gouv.fr.
La présente annonce immobilière a été rédigée sous la responsabilité éditoriale de M Julien Siegfried mandataire indépendant en immobilier (sans détention de fonds), agent commercial de la SAS I@D France immatriculé au RSAC de Nanterre sous le numéro 904668787, titulaire de la carte de démarchage immobilier pour le compte de la société I@D France SAS.
Mandat : 1940447
Diagnostic de Performance Énergétique (DPE)
Plus d'informations
-
Descriptif
- Étage du bien : 12eme
- Gardien
- Ascenseur
- Nbre. d'étages : 12
- Nbre. de chambres : 3
- Nb. Parking : 1
- Nb. de pièces : 5
-
Equipement
- Digicode
- Chauffage : individuel electrique radiateur
- Interphone
- Climatisation
-
Loi ALUR
- Copropriété
- Nombre de lots de la copropriété : 181
- Moyenne de la quote part(an) : 3 488.88 €
-
Superficies
- Surface du balcon : 5 m²
- Surface habitable : 113 m²
-
Etat
- Année de construction : 1989
-
Conditions
- Honoraires à charge de : vendeur
Localisation
Contactez nous
Pour plus d'informations sur cette annonce, n'hésitez pas à nous contacter