Vente
Studio
à
Toulouse
98 500 €
Toulouse (31100)
iad France - Frédéric Grammon vous propose: EXCLUSIVITE et RARE à Toulouse - Charmant Studio T1 secteur Vauquelin (Ecole d'architecture / Université Jean Jaurès).
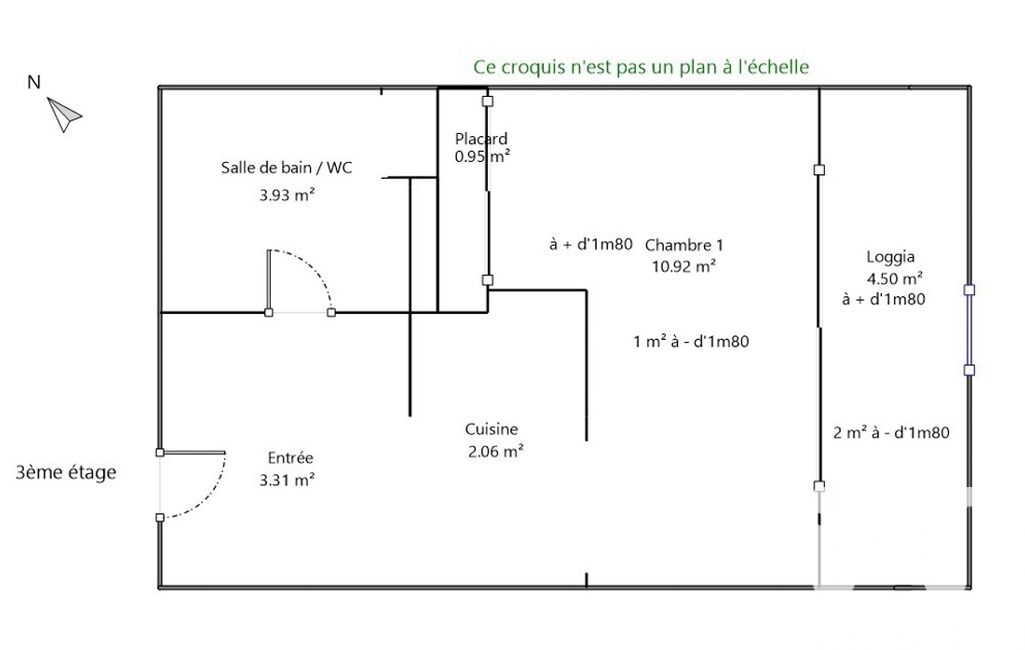
Idéalement placé dans un quartier dynamique et recherché, ce STUDIO de 30m² UTILES (25,67m² Carrez) offre un agencement intelligent et très fonctionnel.
Dès l'entrée, vous serez séduit par l'architecture totalement atypique du studio, sa soupente et ses poutres apparentes, son OEil de bOEuf UNIQUE, sa LOGGIA très lumineuse, le tout organisé dans une configuration optimale.
Le studio dispose de l'ensemble du confort nécessaire avec ,
- 1 entrée
- 1 coin cuisine séparé
- 1 chambre pièce de vie avec placard aménagé
- 1 salle d'eau avec WC
- 1 superbe loggia espace de travail ou de détente
La résidence en Copropriété est très bien entretenue et sécurisée avec un portail automatique, un hall sécurisé et un accès facilité à votre appartement situé au 3ème étage, par de larges escaliers très accessibles.
Compris avec le studio , 1 PLACE DE PARKING PRIVATIVE dans l'enceinte sécurisée de la résidence pour le stationnement de votre véhicule en toute tranquillité.
L'emplacement privilégié de ce studio vous permet enfin de profiter pleinement des attraits de la ville rose, avec ses commerces de proximité, ses transports en commun, ses écoles et universités et ses parcs à quelques pas seulement.
N'attendez plus pour visiter ce studio plein de CHARME avec un potentiel incroyable pour en faire un véritable cocon douillet à votre image.
Une opportunité à ne pas manquer pour investir ou pour votre pied-à-terre à Toulouse :
- Idéal pour étudiant primo-accédant
- Idéal pour télétravailleur Toulousain
- Idéal investisseur pour location en meublé par exemple
- Idéal pour une personne seule ou à deux tout simplement
Contactez moi dès maintenant pour l'organisation d'une visite (bon de visite avec fourniture exigée d'une pièce d'identité - obligation règlementaire, article L. 561-5 CMF).
La presente annonce immobiliere vise 2 lots situés dans une copropriété de 100 lots au total et ne faisant l'objet d'aucune procédure en cours citée à l'article L. 721-1 du code de la construction et de l'habitation. Montant moyen mensuel de charges déclaré par le vendeur : 49€ par mois (soit 588 € annuel). Honoraires d'agence à la charge du vendeur.
Information d'affichage énergétique sur ce bien : classe ENERGIE C indice 167 et classe CLIMAT A indice 6. Les informations sur les risques auxquels ce bien est exposé, y compris l'obligation légale de débroussaillement, sont disponibles sur le site Géorisques : http://www.georisques.gouv.fr.
La présente annonce immobilière a été rédigée sous la responsabilité éditoriale de M Frédéric Grammon mandataire indépendant en immobilier (sans détention de fonds), agent commercial de la SAS I@D France immatriculé au RSAC de toulouse sous le numéro 993873009, titulaire de la carte de démarchage immobilier pour le compte de la société I@D France SAS.
Mandat : 1979397
Diagnostic de Performance Énergétique (DPE)
Plus d'informations
-
Descriptif
- Étage du bien : 3eme
- Nbre. d'étages : 3
- Nbre. de chambres : 1
- Nb. Parking : 1
- Nb. de pièces : 1
-
Equipement
- Digicode
- Placards
- Chauffage : individuel electrique radiateur
- Interphone
-
Loi ALUR
- Copropriété
- Nombre de lots de la copropriété : 100
- Moyenne de la quote part(an) : 588 €
-
Etat
- Année de construction : 1986
-
Conditions
- Honoraires à charge de : vendeur
-
Superficies
- Surface habitable : 25 m²
Localisation
Contactez nous
Pour plus d'informations sur cette annonce, n'hésitez pas à nous contacter