Vente
Appartement
à
Paris
795 000 €
Paris (75016)
iad France - Mohamed Ali Mzali vous propose: Appartement d’exception sur les quais de Seine - Paris 16e
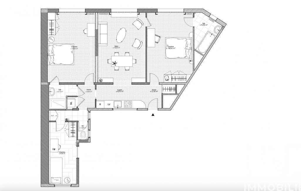
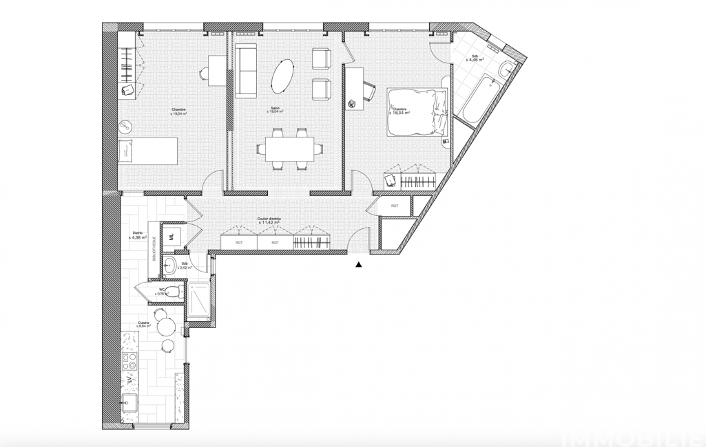
Idéalement situé dans un quartier recherché de Paris, cet élégant appartement de 3 pièces offre un cadre de vie privilégié, à proximité immédiate des commerces, des transports et des berges de la Seine.
D’une superficie de 90,31 m² loi Carrez, cet appartement a fait l’objet d’une rénovation complète, alliant confort moderne et prestations de qualité. Il se compose d’une belle pièce de vie avec salle à manger, d’une cuisine entièrement équipée, d’une chambre spacieuse, d’une salle de bains, ainsi que de WC séparés. Possibilité de créer une deuxième, voire une troisième chambre. Nombreux rangements ainsi qu'une grande cave de 15m² complètent ce bien.
L’appartement se situe au sein d’un immeuble remarquable des années 1930, parfaitement entretenu, offrant des prestations appréciables : ascenseur, accès PMR, gardien, digicode et interphone.
La résidence est sécurisée et fermée, garantissant calme et sérénité. L’exposition est permet de bénéficier d’une belle luminosité naturelle, notamment le matin. Aucun travaux n’est à prévoir.
Une opportunité rare d’acquérir un appartement de qualité dans un environnement privilégié.
La presente annonce immobiliere vise 2 lots situés dans une copropriété de 38 lots au total et ne faisant l'objet d'aucune procédure en cours citée à l'article L. 721-1 du code de la construction et de l'habitation. Montant moyen mensuel de charges déclaré par le vendeur : 454.17€ par mois (soit 5450 € annuel). Honoraires d'agence à la charge du vendeur.
Information d'affichage énergétique sur ce bien : classe ENERGIE D indice 221 et classe CLIMAT D indice 48. Les informations sur les risques auxquels ce bien est exposé, y compris l'obligation légale de débroussaillement, sont disponibles sur le site Géorisques : http://www.georisques.gouv.fr.
La présente annonce immobilière a été rédigée sous la responsabilité éditoriale de M Mohamed Ali Mzali mandataire indépendant en immobilier (sans détention de fonds), agent commercial de la SAS I@D France immatriculé au RSAC de NANTERRE sous le numéro 978287456, titulaire de la carte de démarchage immobilier pour le compte de la société I@D France SAS.
Mandat : 1940845
Diagnostic de Performance Énergétique (DPE)
Plus d'informations
-
Descriptif
- Cave
- Gardien
- Ascenseur
- Nbre. d'étages : 7
- Nbre. de chambres : 1
- Nb. de pièces : 3
-
Equipement
- Digicode
- Chauffage : collectif gaz radiateur
- Interphone
-
Loi ALUR
- Copropriété
- Nombre de lots de la copropriété : 38
- Moyenne de la quote part(an) : 5 450 €
-
Etat
- Année de construction : 1932
-
Conditions
- Honoraires à charge de : vendeur
-
Superficies
- Surface habitable : 90 m²
Localisation
Contactez nous
Pour plus d'informations sur cette annonce, n'hésitez pas à nous contacter