Vente
Maison
à
Nantes
854 000 €
Nantes (44300)
iad France - Yoann Chevalier vous propose: Maison familiale – Secteur Nantes / Longchamp – 4 chambres – Garage
Située dans un environnement prémium, à proximité du centre de Nantes, cette maison offre un cadre de vie idéal « à la nantaise », alliant beaux volumes, luminosité et confort.
Toutes les commodités sont accessibles à pied : écoles, commerces et tramway à seulement 300 mètres.
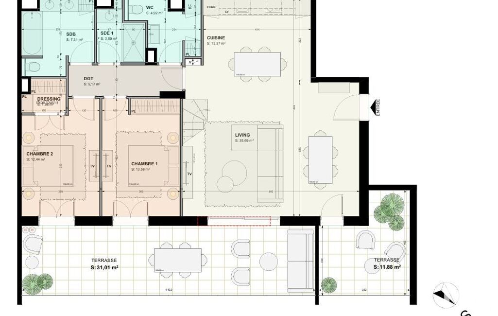
D’une surface d’environ 165 m², elle se compose comme suit :
Au rez-de-chaussée :
Une entrée accueillante ouvre sur une pièce de vie de plus de 70 m², baignée de lumière grâce à de larges ouvertures et un puits de lumière, offrant une belle continuité avec l’extérieur.
Une cuisine ouverte aménagée et équipée accompagnée d’une arrière-cuisine ainsi que d’une buanderie.
Un second salon avec cheminée propose un espace plus intimiste
Deux chambres de plain-pied, dont une avec accès direct au jardin.
Une salle d’eau et deux WC indépendants complètent ce niveau.
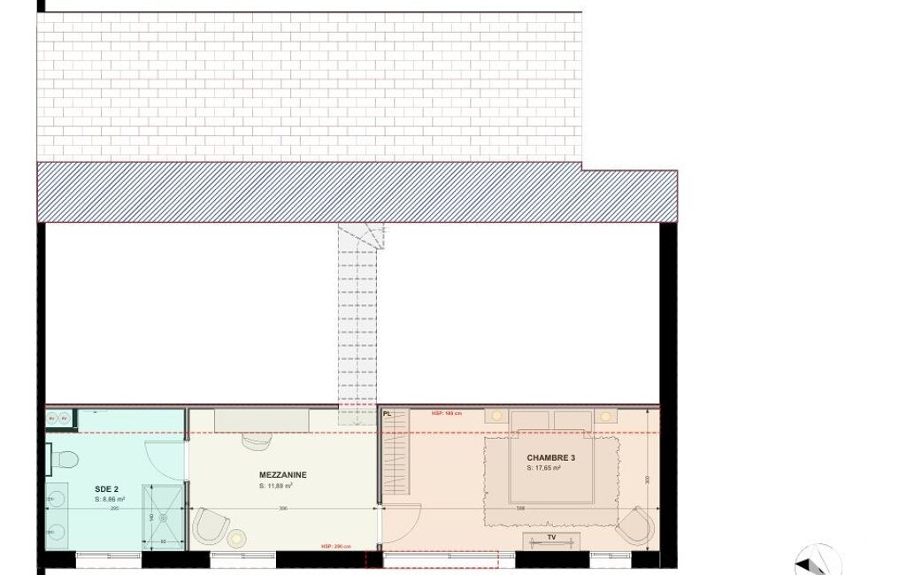
À l’étage :
Un palier dessert deux belles chambres sur parquet.
Une salle de bain avec WC, communicante avec les deux chambres.
À l’extérieur :
Vous profiterez d’une agréable terrasse exposée sud-ouest, un porche, donnant sur un jardin arboré sans vis-à-vis — un véritable écrin de verdure en cOEur de ville.
Un garage traversant vient parfaire l’ensemble.
De nombreux travaux récents, réalisés sous garantie décennale, assurent une maison saine, entretenue et prête à vivre.
Les atouts :
- Une pièce de vie spacieuse, lumineuse et pleine de charme, ouverte sur l’extérieur
- Un emplacement recherché, idéal pour une vie de famille
- Des travaux récents sous garantie décennale
- Une vie de plain-pied
- Une deuxième entrée indépendante, idéal pour une activité pro !!
- Chauffage au sol au RDC
- Aspiration centralisée
Une maison coup de cOEur, parfaite pour une famille en quête d’espace, de lumière et d’un emplacement prémium.
A visiter sans tarder !!
Honoraires d'agence à la charge du vendeur.
Information d'affichage énergétique sur ce bien : classe ENERGIE D indice 195 et classe CLIMAT D indice 42. Les informations sur les risques auxquels ce bien est exposé, y compris l'obligation légale de débroussaillement, sont disponibles sur le site Géorisques : http://www.georisques.gouv.fr.
La présente annonce immobilière a été rédigée sous la responsabilité éditoriale de M Yoann Chevalier mandataire indépendant en immobilier (sans détention de fonds), agent commercial de la SAS I@D France immatriculé au RSAC de SAINT NAZAIRE sous le numéro 921693115, titulaire de la carte de démarchage immobilier pour le compte de la société I@D France SAS.
Mandat : 1982416
Diagnostic de Performance Énergétique (DPE)
Plus d'informations
-
Descriptif
- Nbre. d'étages : 2
- Nbre. de chambres : 4
- Nb. de pièces : 6
-
Superficies
- Superficie terrain : 508 m²
- Surface habitable : 165 m²
-
Equipement
- Chauffage : gaz radiateur
-
Etat
- Année de construction : 1950
-
Conditions
- Honoraires à charge de : vendeur
Localisation
Contactez nous
Pour plus d'informations sur cette annonce, n'hésitez pas à nous contacter