Vente
Duplex
à
Paris
2 100 000 €
Paris (75003)
iad France - Pierre-Louis Messager vous propose: DUPLEX DE 109M² RÉNOVÉ -DERNIER ETAGE- TERRASSE- CLIMATISATION - PARIS 3ème
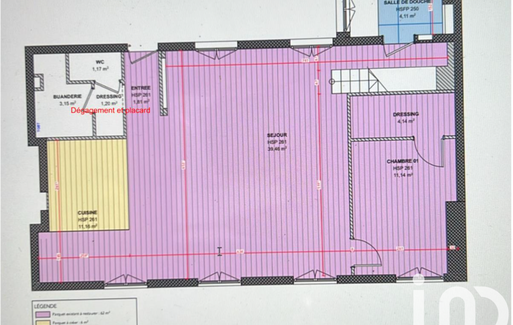
Bienvenue dans ce superbe duplex situé en plein cOEur du Marais et revisité par un architecte d’intérieur. L'appartement sur deux niveaux au 4ème et dernier étage possède sa propre terrasse et est entièrement climatisé. L'emplacement est idéal, parfaitement au calme et pourtant à deux pas de l'effervescence de la rue de Bretagne, de ses commerces, du Carreau du Temple et de l'incontournable Marché des enfants rouges. Ce bien d'exception a été entièrement rénové avec goût pour offrir un cadre de vie contemporain et confortable, alliant charme de l'ancien et modernité. Il se compose au 1er niveau d'une pièce de vie de plus de 50m2, une chambre, une salle d'eau. Au 2nd niveau, un palier avec accès à la terrasse avec vue sur les toits de Paris, un dressing, une grande chambre avec salle salle de bain attenante. La luminosité est au rendez-vous dans chaque pièce du duplex grâce à ses expositions Est et Ouest. Enfin, vous pourrez profiter de la terrasse offrant un espace extérieur privilégié pour des moments de détente en plein cOEur de la capitale.
Cet appartement bénéficie bien sûr d'un ascenseur avec digicode, l'interphone, caméra, porte blindée, climatisation et fibre optique.
La presente annonce immobiliere vise 6 lots situés dans une copropriété de 31 lots au total et ne faisant l'objet d'aucune procédure en cours citée à l'article L. 721-1 du code de la construction et de l'habitation. Montant moyen mensuel de charges déclaré par le vendeur : 375€ par mois (soit 4500 € annuel). Honoraires d'agence à la charge de l'acquéreur. Prix honoraires inclus : 2100000 euros. Prix hors honoraires : 2045000 euros. Honoraires TTC à la charge de l'acquéreur (2,69% du prix du bien hors honoraires) : 55000 euros.
Information d'affichage énergétique sur ce bien : classe ENERGIE D indice 193 et classe CLIMAT B indice 6. Les informations sur les risques auxquels ce bien est exposé, y compris l'obligation légale de débroussaillement, sont disponibles sur le site Géorisques : http://www.georisques.gouv.fr.
La présente annonce immobilière a été rédigée sous la responsabilité éditoriale de M Pierre-Louis Messager mandataire indépendant en immobilier (sans détention de fonds), agent commercial de la SAS I@D France immatriculé au RSAC de Créteil sous le numéro 485272025, titulaire de la carte de démarchage immobilier pour le compte de la société I@D France SAS.
Mandat : 1801387
Diagnostic de Performance Énergétique (DPE)
Plus d'informations
-
Descriptif
- Étage du bien : 4eme
- Terrasse
- Ascenseur
- Nbre. d'étages : 4
- Nbre. de chambres : 2
- Nb. de pièces : 4
-
Equipement
- Alarme
- Digicode
- Chauffage : individuel electrique
- Interphone
- Climatisation
-
Loi ALUR
- Copropriété
- Nombre de lots de la copropriété : 31
- Moyenne de la quote part(an) : 4 500 €
-
Etat
- Année de construction : 1850
-
Conditions
- Honoraires à charge de : vendeur
-
Superficies
- Surface habitable : 109 m²
Localisation
Contactez nous
Pour plus d'informations sur cette annonce, n'hésitez pas à nous contacter