Vente
Maison
à
Jonage
269 000 €
Jonage (69330)
iad France - Laurie Marcet vous propose: Maison en triplex à personnaliser – Haut de Jonage
Envie d’un projet immobilier malin dans un secteur recherché ?
En plein centre de Jonage, cette maison mitoyenne en pisé profite d’un emplacement idéal, à deux pas des commerces, écoles et commodités. Un bien au charme authentique, avec une excellente inertie thermique.
Un triplex à votre image :
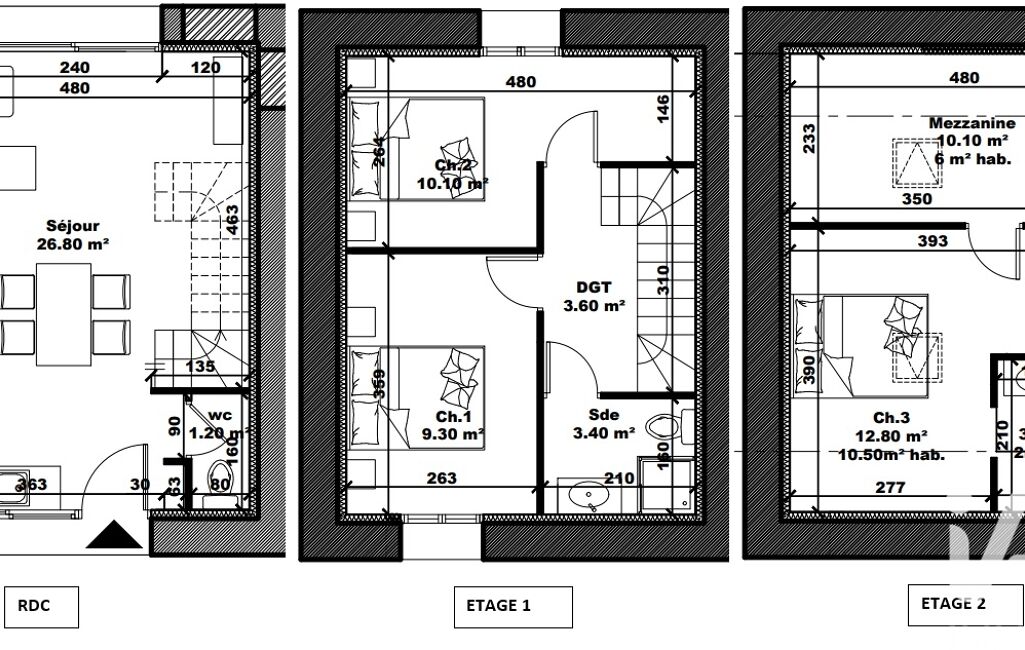
Avec ses 90 m² répartis sur 3 niveaux, ce plateau brut en triplex vous offre une liberté totale d’aménagement :
• RDC : salon – cuisine – WC
• 1er étage : 2 chambres + salle d’eau
• 3e étage : suite parentale avec salle d’eau, WC, dressing et espace de travail
Un agencement idéal pour une vie de famille confortable ou un investissement optimisé.
Le gros OEuvre est déjà entièrement réalisé :
• Toiture et charpente neuves
• Façades rénovées
• Menuiseries neuves
• Réseaux (eau, électricité, évacuations) en place avec compteurs eau et EDF installés
Que vous soyez artisan souhaitant optimiser votre savoir-faire, bricoleur passionné ou investisseur en quête d’un projet rentable et différenciant, ce bien coche toutes les cases.
Budget maîtrisé, potentiel optimisé
Prix : 269 000 € + environ 70 000 € de travaux pour un bien “clé en main” (accompagnement possible avec maître d’OEuvre).
Vous choisissez vos matériaux et finitions pour un résultat 100 % personnalisé.
Atout supplémentaire : frais de notaire réduits (calculés uniquement sur le bâti).
Un extérieur à fort potentiel
Implantée sur une parcelle arborée de 289 m², la maison offre un bel espace extérieur à aménager selon vos envies : terrasse, coin détente, jardin familial…
Côté pratique : 2 places de stationnement complètent le bien.
Mon avis ?
Un projet rare sur le secteur : vous partez d’une base saine avec tout le gros OEuvre déjà réalisé, tout en gardant la liberté de créer un intérieur sur-mesure. C’est le compromis idéal entre achat sécurisé et valorisation intelligente.
Dossier complet sur demande.
Contactez-moi pour découvrir ce projet et organiser une visite.
Honoraires d'agence à la charge du vendeur.
Bien non soumis au DPE. Les informations sur les risques auxquels ce bien est exposé, y compris l'obligation légale de débroussaillement, sont disponibles sur le site Géorisques : http://www.georisques.gouv.fr.
La présente annonce immobilière a été rédigée sous la responsabilité éditoriale de Mme Laurie Marcet mandataire indépendant en immobilier (sans détention de fonds), agent commercial de la SAS I@D France immatriculé au RSAC de Lyon sous le numéro 513130500, titulaire de la carte de démarchage immobilier pour le compte de la société I@D France SAS.
Mandat : 2009295
Diagnostic de Performance Énergétique (DPE)
Plus d'informations
-
Descriptif
- Nbre. d'étages : 3
- Nbre. de chambres : 3
- Nb. Parking : 1
- Nb. de pièces : 4
-
Superficies
- Superficie terrain : 289 m²
- Surface habitable : 90 m²
-
Etat
- Année de construction : 1900
-
Conditions
- Honoraires à charge de : vendeur
Localisation
Contactez nous
Pour plus d'informations sur cette annonce, n'hésitez pas à nous contacter