Vente
Appartement
à
Le Havre
149 000 €
Le Havre (76600)
iad France - Jean-François MAURICE vous propose: Nouveauté, **** en EXCLUSIVITE , Appartement 4 Pièces, 81 m², 2 chambres, place de parking, balcon ****
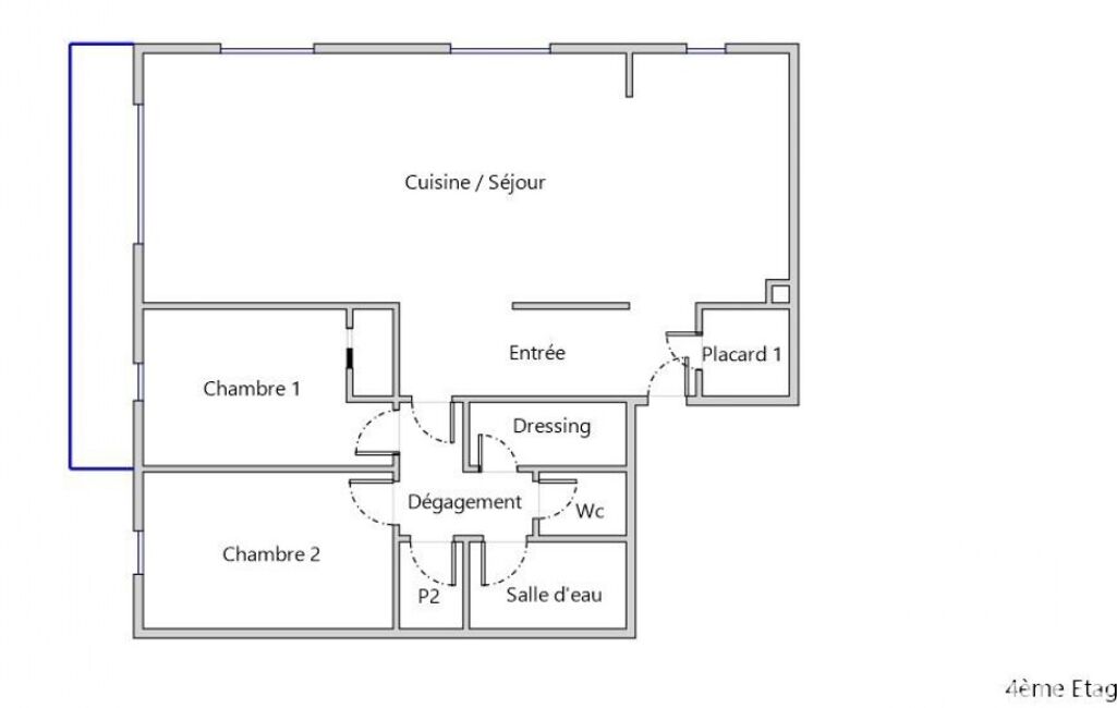
Situé au quatrième et dernier étage, cet appartement lumineux de type T4 offre un espace de vie confortable, fonctionnel et moderne.
Avec une surface habitable de 81 m², il se compose d'une pièce de vie avec cuisine ouverte de 40 m², de 2 chambres de 10,5 m² chacune, d'une salle de douche, d'un WC indépendant, d'une buanderie, d'une entrée avec rangements et d'un dressing.
Coup de cOEur garanti.
Aucun travaux à prévoir / Cave / Place de stationnement privative / Balcon
Contactez-moi dès maintenant. Visite possible 7 jours / 7.
La presente annonce immobiliere vise 2 lots situés dans une copropriété de 100 lots au total et ne faisant l'objet d'aucune procédure en cours citée à l'article L. 721-1 du code de la construction et de l'habitation. Montant moyen mensuel de charges déclaré par le vendeur : 253.33€ par mois (soit 3040 € annuel). Honoraires d'agence à la charge du vendeur.
Information d'affichage énergétique sur ce bien : classe ENERGIE E indice 246 et classe CLIMAT E indice 68. Les informations sur les risques auxquels ce bien est exposé, y compris l'obligation légale de débroussaillement, sont disponibles sur le site Géorisques : http://www.georisques.gouv.fr.
La présente annonce immobilière a été rédigée sous la responsabilité éditoriale de M Jean-François MAURICE mandataire indépendant en immobilier (sans détention de fonds), agent commercial de la SAS I@D France immatriculé au RSAC de LE HAVRE sous le numéro 877 579 714, titulaire de la carte de démarchage immobilier pour le compte de la société I@D France SAS.
Mandat : 1882750
Diagnostic de Performance Énergétique (DPE)
Plus d'informations
-
Descriptif
- Étage du bien : 4eme
- Nbre. d'étages : 4
- Nbre. de chambres : 2
- Nb. Parking : 1
- Nb. de pièces : 4
-
Loi ALUR
- Copropriété
- Nombre de lots de la copropriété : 1
- Moyenne de la quote part(an) : 12 €
-
Conditions
- Honoraires à charge de : vendeur
-
Superficies
- Surface habitable : 81 m²
Localisation
Contactez nous
Pour plus d'informations sur cette annonce, n'hésitez pas à nous contacter