Vente
Appartement
à
Les Lilas
430 000 €
Les Lilas (93260)
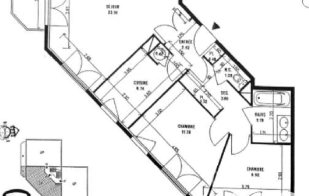
iad France - Cinthya Placido Larrazabal vous propose: 66 m² – Plein Sud – Petite copropriété – À 5 minutes du métro Serge Gainsbourg
Situé dans une petite copropriété, au sein d’un immeuble de 3 étages, bien entretenu et à taille humaine.
Grand salon / salle à manger spacieux avec extérieur et balcon exposé plein sud
Cuisine bien pensée, fonctionnelle et lumineuse
Deux chambres confortables et spacieuses. Une avec extérieur.
Salle de bain
WC séparés
Nombreux rangements intégrés
Annexes :
Box fermé, en très bon état, propre et spacieux
Cave saine en sous-sol
Local vélo sécurisé
Bon DPE, Faibles charges de copropriété, Résidence très bien entretenue
Très bien situé, proche des commerces, écoles et transports
La presente annonce immobiliere vise 3 lots situés dans une copropriété de 50 lots au total et ne faisant l'objet d'aucune procédure en cours citée à l'article L. 721-1 du code de la construction et de l'habitation. Montant moyen mensuel de charges déclaré par le vendeur : 126.67€ par mois (soit 1520 € annuel). Honoraires d'agence à la charge du vendeur.
Information d'affichage énergétique sur ce bien : classe ENERGIE C indice 128 et classe CLIMAT A indice 4. Les informations sur les risques auxquels ce bien est exposé, y compris l'obligation légale de débroussaillement, sont disponibles sur le site Géorisques : http://www.georisques.gouv.fr.
La présente annonce immobilière a été rédigée sous la responsabilité éditoriale de Mme Cinthya Placido Larrazabal mandataire indépendant en immobilier (sans détention de fonds), agent commercial de la SAS I@D France immatriculé au RSAC de BOBIGNY sous le numéro 951270479, titulaire de la carte de démarchage immobilier pour le compte de la société I@D France SAS.
Mandat : 1957329
Diagnostic de Performance Énergétique (DPE)
Plus d'informations
-
Descriptif
- Étage du bien : 1er
- Nbre. d'étages : 3
- Nbre. de chambres : 2
- Nb. de pièces : 3
-
Loi ALUR
- Copropriété
- Nombre de lots de la copropriété : 50
- Moyenne de la quote part(an) : 1 520 €
-
Equipement
- Chauffage : individuel electrique radiateur
-
Etat
- Année de construction : 1989
-
Conditions
- Honoraires à charge de : vendeur
-
Superficies
- Surface habitable : 66 m²
Localisation
Contactez nous
Pour plus d'informations sur cette annonce, n'hésitez pas à nous contacter