Vente
Maison
à
Bordeaux
875 000 €
Bordeaux (33000)
iad France - Anthony Heymann vous propose: Bordeaux - Judaïque
Maison familiale rénovée avec garage, jardin et cave.
Idéalement située proche des commerces et transports, à 200 mètres de la barrière Judaïque. Nombreux établissements scolaires à proximité.
Se compose d'une belle entrée, un grand salon/séjour lumineux ouvert sur le jardin, une cuisine ouverte aménagée et équipée, wc et un accès au garage équipé d'un portail électrique.
A l'étage, 4 grandes chambres, deux dressings, une salle de bain avec baignoire + douche et une salle de douche, wc.
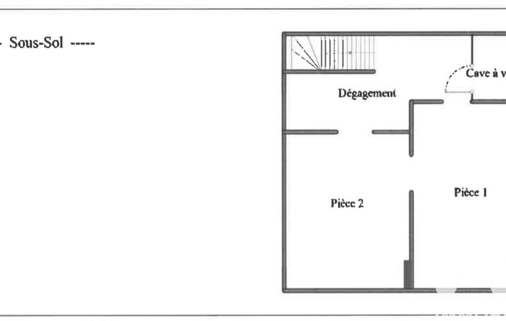
Une grande cave facile d'accès complète ce bien.
Prestations anciennes de qualité, carreaux de ciment, parquet ancien, murs en pierre, cheminées, moulures, etc.
Le jardin fait 50 m². Il est bien exposé et à l’abri des regards. Accès indépendant sur le coté pour rentrer les vélos et poubelles.
Les combles restent aménageables si besoin de plus de place.
Belle hauteur sous plafond partout. Pas de travaux à prévoir.
Maison avec de beaux volumes, idéale pour une famille. A visiter rapidement
Honoraires d'agence à la charge du vendeur.
Information d'affichage énergétique sur ce bien : classe ENERGIE D indice 174 et classe CLIMAT D indice 37. Les informations sur les risques auxquels ce bien est exposé, y compris l'obligation légale de débroussaillement, sont disponibles sur le site Géorisques : http://www.georisques.gouv.fr.
La présente annonce immobilière a été rédigée sous la responsabilité éditoriale de M Anthony Heymann mandataire indépendant en immobilier (sans détention de fonds), agent commercial de la SAS I@D France immatriculé au RSAC de bordeaux sous le numéro 824308506, titulaire de la carte de démarchage immobilier pour le compte de la société I@D France SAS.
Mandat : 1953068
Diagnostic de Performance Énergétique (DPE)
Plus d'informations
-
Descriptif
- Terrasse
- Nbre. d'étages : 2
- Nbre. de chambres : 4
- Nb. de pièces : 5
-
Superficies
- Superficie terrain : 163 m²
- Surface habitable : 178 m²
-
Equipement
- Chauffage : gaz radiateur
-
Etat
- Année de construction : 1920
-
Conditions
- Honoraires à charge de : vendeur
Localisation
Contactez nous
Pour plus d'informations sur cette annonce, n'hésitez pas à nous contacter