Vente
Murs commerciaux
à
Tours
2 205 000 €
Tours (37200)
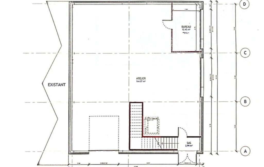
iad France - Hélène Thibaud (06 74 86 46 47) vous propose : Local professionnel bénéficiant d'une localisation stratégique (à proximité immédiate de la rocade).al Les 1110 m2 environ de surface se répartissent entre bureaux et ateliers, 834 m2 environ de plain pied (bureaux et ateliers) et 278 m2 environ à l'étage (uniquement des bureaux.
2 espaces 'ateliers' et 10 bureaux.
Le local d'origine a été construit en 1995, une extension a été réalisée en 2018 selon les normes RT 2012.
Le local initial totalise 736 m2 environ : 465 m2 environ d'atelier (exclusivement en rez-de-chaussée) et 289 m2 environ de bureaux (dont 100 m2 environ sur 4 bureaux à l'étage).
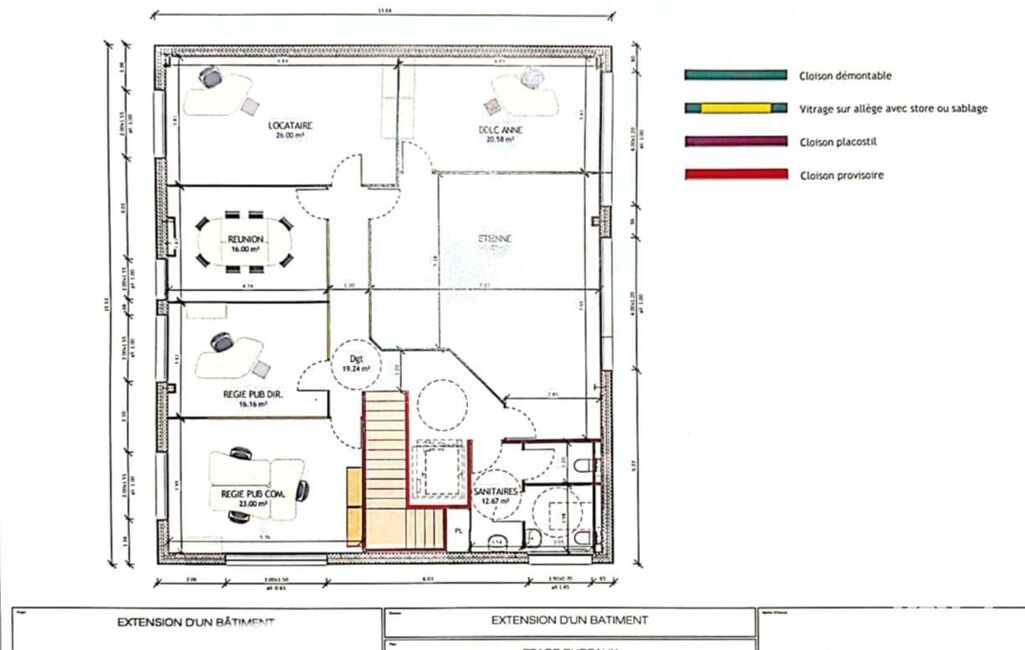
L'extension offre 360 m2 environ supplémentaires, soit 180 m2 environ par niveau. Le rez-de-chaussée accueille les ateliers ainsi qu'un bureau. A l'étage, bureaux et sanitaires. Chacun des 6 bureaux bénéficie d'une climatisation réversible.
Les plans des bâtiments et différents niveaux sont joints en photographie.
Quai de chargement pour camion.
Il est possible de circuler d'un bâtiment à l'autre via les ateliers. Pour autant, il est également possible de condamner cet accès de manière à rendre chacun des bâtiments indépendant et destiné à des activités distinctes.
De nombreuses possibilités sur ces locaux !
On en discute autour d'une visite ?
Information d'affichage énergétique sur le bien associé à cette annonce : DPE NS indice et GES NS indice .La présente annonce immobilière a été rédigée sous la responsabilité éditoriale de Mme Hélène Thibaud (ID 70668), Agent Commercial mandataire en immobilier immatriculé au Registre Spécial des Agents Commerciaux (RSAC) du Tribunal de Commerce de TOURS sous le numéro 912318987
Retrouvez tous nos biens sur notre site internet. www.iadfrance.fr
Mandat : 1991563
Diagnostic de Performance Énergétique (DPE)
Plus d'informations
-
Conditions
- Honoraires à charge de : vendeur
-
Superficies
- Surface habitable : 1110 m²
Localisation
Contactez nous
Pour plus d'informations sur cette annonce, n'hésitez pas à nous contacter