Vente
Immeuble
à
Toulenne
892 500 €
Toulenne (33210)
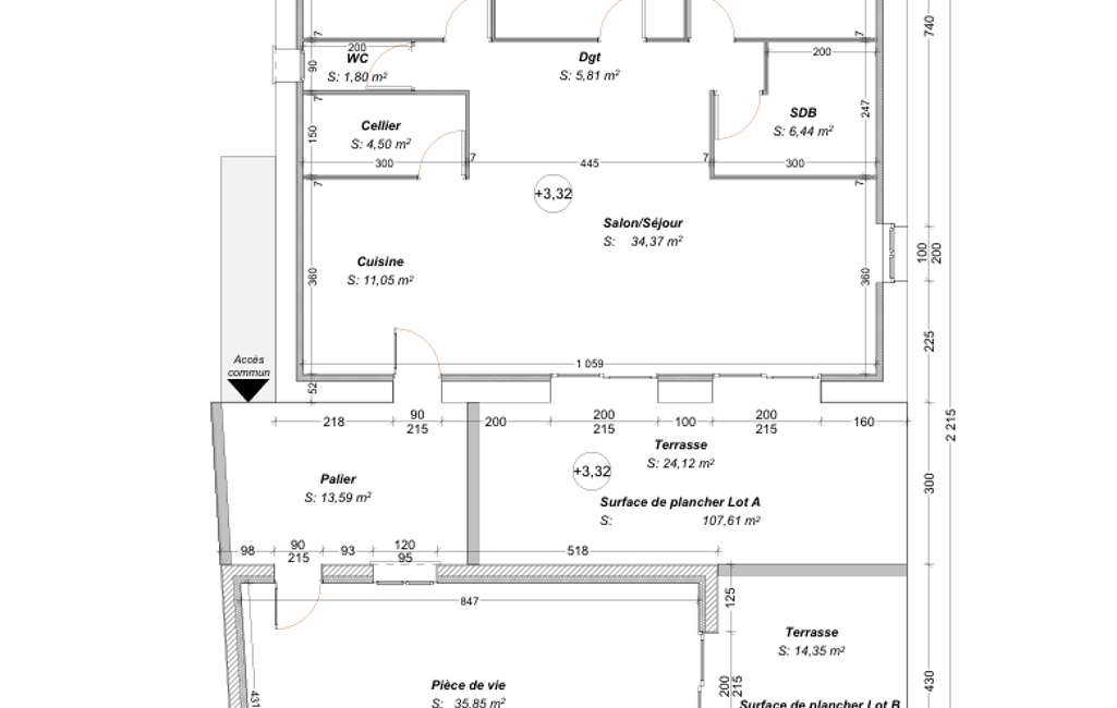
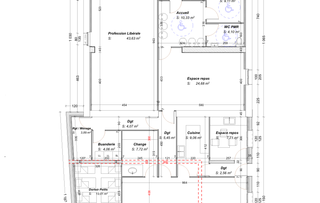
iad France - Marlyse Lamade vous propose: IMMEUBLE DE RAPPORT 400 m² – RENTABILITÉ 6,5%
Emplacement stratégique proche de la commune de LANGON 33 | Rénovation + Extension
Opportunité rare pour investisseur ou marchand de biens : un ensemble immobilier mixte (bureaux et habitation) entièrement rénové, offrant une sécurité locative immédiate et un levier de croissance foncière exceptionnel.
Mandat : 1948202
Diagnostic de Performance Énergétique (DPE)
Plus d'informations
-
Conditions
- Honoraires : 42 500 €
- Prix hors honoraires acquéreur : 850 000 €
- Honoraires à charge de : acquéreur
-
Equipement
- Chauffage : individuel electrique
-
Descriptif
- Nbre. d'étages : 1
-
Etat
- Année de construction : 1960
-
Superficies
- Surface habitable : 4 m²
Localisation
Contactez nous
Pour plus d'informations sur cette annonce, n'hésitez pas à nous contacter
Marlyse Lamade
Annonce 2350 /
79375