Vente
Appartement
à
Le Cheylas
155 000 €
Le Cheylas (38570)
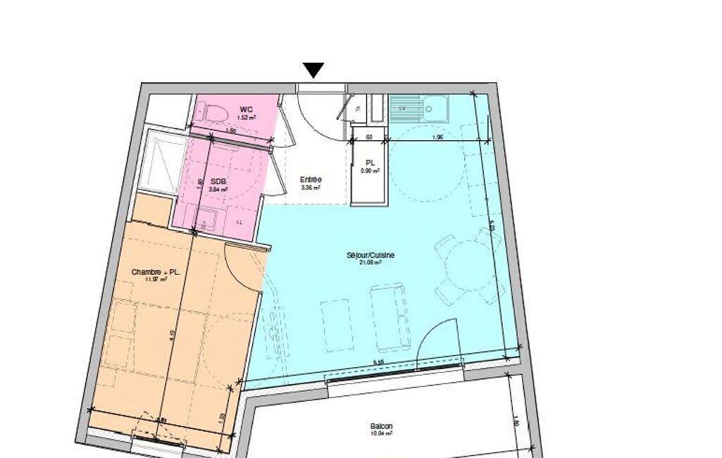
iad France - Marie-Rose Gilles (06 98 85 33 80) vous propose : Appartement T2 neuf au Cheylas au deuxième et dernier étage : frais de notaire réduits ie qu'ils s'élèvent à environ 2,5% du prix de vente.
Appartement lumineux et ensoleillé grâce son exposition Sud-Est.
Grand balcon : 10,04m² environ (1,80x5,69m). Idéal pour déjeuner à 6/8 personnes).
Prestations :
- Espace de vie de 21,08m² environ
- 1 grande chambre avec placard de 11,97m² environ
- 1 grande salle-de-d'eau de 3,84m² environ
- 1 WC séparé
- Réglementation thermique 2020
- Chauffage et production d'eau chaude : individuel gaz
- Sols : carrelage 60x60cm dans les toutes les pièces sauf les chambres, en revêtement stratifié
- Murs : Peinture
Date de livraison prévisionnelle : 3e trimestre 2028
Proximité des services, commerces, écoles, transports.
Autres T2 disponibles : entre 135 000€ et 158 000€, entre 40,57m² environ et 49,19m² environ.
Garage en sus : à partir de 15000€
Parking en sus : 6000€
Local vélo privatif en sus : 3000€ (environ 4m² environ)
Le Cheylas, commune résidentielle à :
A moins de 5min : Goncelin (38570)
A moins de 10min : Tencin (38570), Le Touvet (38660)
A moins de 15min : Pontcharra (38530), Allevard (38580), Theys (38570), La Terrasse (38660)
A moins de 20min : Crolles (38920), Froges (38190), Brignoud Villard-Bonnot (38190), Chapareillan (38530), Porte de Savoie (73800)
A moins de 30min : Chambéry (73000), Grenoble (38000), Challes-les-Eaux (73190)
Contactez moi pour toute information complémentaire
Honoraires d’agence à la charge du vendeur. Bien non soumis au DPE. Les informations sur les risques auxquels ce bien est exposé sont disponibles sur le site Géorisques : www.georisques.gouv.fr. La présente annonce immobilière a été rédigée sous la responsabilité éditoriale de Mlle Marie-Rose Gilles EI (ID 83761), mandataire indépendant en immobilier (sans détention de fonds), agent commercial de la SAS I@D France immatriculé au RSAC de GRENOBLE sous le numéro 478110612, titulaire de la carte de démarchage immobilier pour le compte de la société I@D France SAS.
Retrouvez tous nos biens sur notre site internet. www.iadfrance.fr
Mandat : 1944334-14
Diagnostic de Performance Énergétique (DPE)
Plus d'informations
-
Descriptif
- Étage du bien : 2eme
- Terrasse
- Ascenseur
- Nbre. d'étages : 2
- Nb. de pièces : 2
-
Equipement
- Placards
- Interphone
-
Conditions
- Honoraires à charge de : vendeur
-
Superficies
- Surface habitable : 46 m²
Localisation
Contactez nous
Pour plus d'informations sur cette annonce, n'hésitez pas à nous contacter