Vente
Maison
à
Le Lavandou
1 995 000 €
Le Lavandou (83980)
iad France - Sarah Rozière (06 99 86 19 42) vous propose : Villa Agathe – Quartier La Fossette, Le Lavandou.
Au cOEur du quartier très prisé de La Fossette, à seulement quelques minutes du village provençal du Lavandou et de ses plages de sable fin, la Villa Agathe incarne l’art de vivre méditerranéen dans ce qu’il a de plus exclusif.
Une villa contemporaine d’exception :
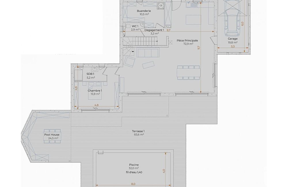
Avec ses 170 m² environ habitables, la villa déploie des volumes généreux, sublimés par un séjour de 73 m2 environ inondé de lumière grâce à de vastes baies vitrées.
La distribution élégante et fonctionnelle séduit par son immense salon donnant directement sur la terrasse et la piscine privée (8 mètres par 4).
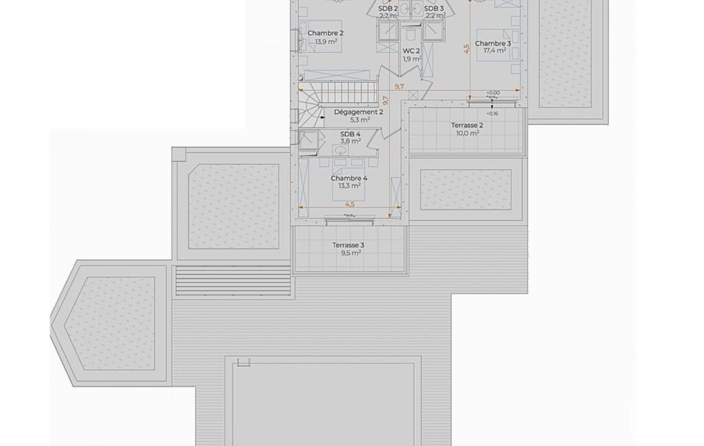
La suite parentale, située au rez-de-chaussée, dispose d’un agencement optimisé garantissant confort et intimité. À l’étage, trois chambres avec salles d’eau privatives, dont deux avec balcon, offrent des espaces indépendants.
Caractéristiques et prestations :
- Architecture contemporaine aux lignes pures, mariant confort et modernité.
- Piscine privative carrelée avec plage effet bois, pool-house aménageable
- Grandes baies vitrées en aluminium, volets roulants électriques centralisés.
- Carrelage grand format 90x90 cm, cuisines et salles de bain élégamment équipées.
- Climatisation réversible, chauffe-eau thermodynamique, performances RT2012.
- Résidence sécurisée et paysagée, intégrée dans un environnement naturel préservé
- Un garage fermé complété par deux stationnements privatifs
À quelques minutes du village du Lavandou, découvrez son port de plaisance, ses marchés colorés et ses ruelles au charme provençal.
La station balnéaire est réputée pour ses 12 plages de sable fin aux eaux turquoise, véritables joyaux de la Côte d’Azur. Un lieu où la Provence et la Méditerranée se rencontrent, offrant un art de vivre rare, entre authenticité et raffinement.
Villa Agathe, c’est plus qu’une maison : c’est un sanctuaire méditerranéen, une OEuvre contemporaine où chaque jour s’écrit face à la mer.
N’hésitez pas à me contacter pour plus d’informations ou pour un accompagnement sur mesure.
Honoraires d’agence à la charge du vendeur. Bien non soumis au DPE. Les informations sur les risques auxquels ce bien est exposé sont disponibles sur le site Géorisques : www.georisques.gouv.fr. La présente annonce immobilière a été rédigée sous la responsabilité éditoriale de Mlle Sarah Rozière EI (ID 83696), mandataire indépendant en immobilier (sans détention de fonds), agent commercial de la SAS I@D France immatriculé au RSAC de Clermont-Ferrand sous le numéro 978616993, titulaire de la carte de démarchage immobilier pour le compte de la société I@D France SAS.
Retrouvez tous nos biens sur notre site internet. www.iadfrance.fr
Mandat : 1717057-2
Diagnostic de Performance Énergétique (DPE)
Plus d'informations
-
Equipement
- Alarme
- Digicode
- Interphone
- Climatisation
-
Descriptif
- Terrasse
- Nbre. d'étages : 1
- Nbre. de chambres : 4
- Nb. de pièces : 5
-
Superficies
- Superficie terrain : 204 m²
- Surface habitable : 171 m²
-
Extérieur
- Piscine
-
Etat
- Année de construction : 2025
-
Conditions
- Honoraires à charge de : vendeur
Localisation
Contactez nous
Pour plus d'informations sur cette annonce, n'hésitez pas à nous contacter