Vente
Appartement
à
Châlons-en-Champagne
110 000 €
Châlons-en-Champagne (51000)
iad France - Laurence Sommesous vous propose: Bel Appartement T3 fonctionnel avec Terrasse à Châlons-en-Champagne -
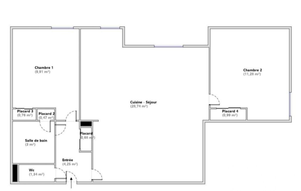
Dans une résidence sécurisée de 2007, ce superbe appartement T3 de 62m² offre un cadre de vie confortable et agréable.
En entrant, vous serez séduit par l'agencement optimal des pièces. L'appartement se compose d'une entrée avec placard, deux chambres avec placards, d'une salle de bain, d'un WC indépendant et d'un salon/séjour/cuisine de 29m².
La cuisine est équipée,
L'appartement est en bon état général, aucun travaux n'est à prévoir. Les prestations de qualité comprennent l'installation de la fibre optique, un accès PMR, une ventilation mécanique, un interphone et un digicode pour votre tranquillité.
Pour votre confort, vous disposez d'un garage sécurisé de 2 places en sous sol pour stationner vos véhicules en toute sérénité.
Vous apprécierez la proximité des commerces, des écoles et des transports en commun, rendant le quotidien plus pratique et agréable.
La presente annonce immobiliere vise 2 lots situés dans une copropriété de 52 lots au total et ne faisant l'objet d'aucune procédure en cours citée à l'article L. 721-1 du code de la construction et de l'habitation. Montant moyen mensuel de charges déclaré par le vendeur : 100.17€ par mois (soit 1202.04 € annuel). Honoraires d'agence à la charge du vendeur.
Information d'affichage énergétique sur ce bien : classe ENERGIE C indice 155 et classe CLIMAT A indice 5. Les informations sur les risques auxquels ce bien est exposé, y compris l'obligation légale de débroussaillement, sont disponibles sur le site Géorisques : http://www.georisques.gouv.fr.
La présente annonce immobilière a été rédigée sous la responsabilité éditoriale de Mme Laurence Sommesous mandataire indépendant en immobilier (sans détention de fonds), agent commercial de la SAS I@D France immatriculé au RSAC de Châlons-en-Champagne sous le numéro 751438938, titulaire de la carte de démarchage immobilier pour le compte de la société I@D France SAS.
Mandat : 1966038
Diagnostic de Performance Énergétique (DPE)
Plus d'informations
-
Descriptif
- Terrasse
- Nbre. d'étages : 2
- Nbre. de chambres : 2
- Nb. de pièces : 3
-
Equipement
- Digicode
- Chauffage : individuel electrique radiateur
- Interphone
-
Loi ALUR
- Copropriété
- Nombre de lots de la copropriété : 52
- Moyenne de la quote part(an) : 1 202.04 €
-
Superficies
- Surface terrasse : 5 m²
- Surface habitable : 61 m²
-
Etat
- Année de construction : 2007
-
Conditions
- Honoraires à charge de : vendeur
Localisation
Contactez nous
Pour plus d'informations sur cette annonce, n'hésitez pas à nous contacter