Vente
Maison de ville
à
Laigneville
139 000 €
Laigneville (60290)
iad France - Sofyane Tarraf vous propose: -- Idéal pour investisseur ou primo accédant // Mieux qu'un appartement pas de charges de copropriété !! --
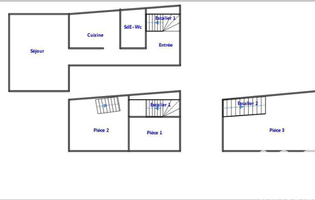
Venez découvrir cette charmante maison de ville en pierre de 74m2 qui comprend au :
* Rdc : entrée, séjour lumineux de 22m2, cuisine E/A, salle d'eau avec wc
* 1er étage : palier desservant une chambre et un dressing pouvant faire office de bureau ou de chambre traversante
* 2ème étage : une chambre
Les ATOUTS :
- Tout électrique / Double vitrage / DPE en C
- Charme de la pierre
- Proximité avec les commodités (écoles, commerces et gare de Laigneville à 5min)
Contactez-moi rapidement pour la visiter !
Honoraires d'agence à la charge du vendeur.
Information d'affichage énergétique sur ce bien : classe ENERGIE D indice 215 et classe CLIMAT B indice 5. Les informations sur les risques auxquels ce bien est exposé, y compris l'obligation légale de débroussaillement, sont disponibles sur le site Géorisques : http://www.georisques.gouv.fr.
La présente annonce immobilière a été rédigée sous la responsabilité éditoriale de M Sofyane Tarraf mandataire indépendant en immobilier (sans détention de fonds), agent commercial de la SAS I@D France immatriculé au RSAC de COMPIEGNE sous le numéro 888786159, titulaire de la carte de démarchage immobilier pour le compte de la société I@D France SAS.
Mandat : 1969656
Diagnostic de Performance Énergétique (DPE)
Plus d'informations
-
Descriptif
- Nbre. d'étages : 3
- Nbre. de chambres : 2
- Nb. de pièces : 4
-
Equipement
- Câble TV
- Chauffage : electrique radiateur
-
Superficies
- Superficie terrain : 65 m²
- Surface habitable : 74 m²
-
Etat
- Année de construction : 1949
-
Conditions
- Honoraires à charge de : vendeur
Localisation
Contactez nous
Pour plus d'informations sur cette annonce, n'hésitez pas à nous contacter