Vente
Appartement
à
Surzur
198 000 €
Surzur (56450)
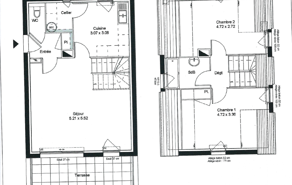
iad France - Servane De Fromont vous propose: A Surzur, à pied des commerces et des commodités, venez découvrir cet appartement situé au 1er étage d’une petite copropriété de 2011.
Vous serez séduits par cette belle pièce de vie lumineuse, avec sa cuisine semi-ouverte sur le salon, créant un espace convivial et agréable au quotidien.
Un cellier attenant à la cuisine apporte un vrai confort de rangement.
Le séjour s’ouvre sur un beau balcon exposé plein sud, parfait pour profiter des beaux jours.
À ce niveau, vous trouverez également un WC séparé.
L’appartement est en duplex :
À l’étage, l’espace nuit se compose de deux chambres confortables et d’une salle de bain.
Côté stationnement, vous bénéficierez d’un box fermé ainsi que d’une place en sous-sol.
L'appartement est actuellement loué.
N’hésitez pas à me contacter pour plus d’informations ou organiser une visite !
La presente annonce immobiliere vise 3 lots situés dans une copropriété de 95 lots au total et ne faisant l'objet d'aucune procédure en cours citée à l'article L. 721-1 du code de la construction et de l'habitation. Montant moyen mensuel de charges déclaré par le vendeur : 71€ par mois (soit 852 € annuel). Honoraires d'agence à la charge de l'acquéreur. Prix honoraires inclus : 198000 euros. Prix hors honoraires : 190000 euros. Honoraires TTC à la charge de l'acquéreur (4,21% du prix du bien hors honoraires) : 8000 euros.
Information d'affichage énergétique sur ce bien : classe ENERGIE C indice 144 et classe CLIMAT A indice 5. Les informations sur les risques auxquels ce bien est exposé, y compris l'obligation légale de débroussaillement, sont disponibles sur le site Géorisques : http://www.georisques.gouv.fr.
La présente annonce immobilière a été rédigée sous la responsabilité éditoriale de Mme Servane De Fromont mandataire indépendant en immobilier (sans détention de fonds), agent commercial de la SAS I@D France immatriculé au RSAC de VANNES CEDEX sous le numéro 921444634, titulaire de la carte de démarchage immobilier pour le compte de la société I@D France SAS.
Mandat : 1956013
Diagnostic de Performance Énergétique (DPE)
Plus d'informations
-
Descriptif
- Terrasse
- Nbre. d'étages : 1
- Nbre. de chambres : 2
- Nb. de pièces : 3
-
Conditions
- Honoraires : 8 000 €
- Prix hors honoraires acquéreur : 190 000 €
- Honoraires à charge de : acquéreur
-
Loi ALUR
- Copropriété
- Nombre de lots de la copropriété : 95
- Moyenne de la quote part(an) : 852 €
-
Superficies
- Surface terrasse : 9 m²
- Surface habitable : 67 m²
-
Equipement
- Chauffage : individuel electrique
-
Etat
- Année de construction : 2011
Localisation
Contactez nous
Pour plus d'informations sur cette annonce, n'hésitez pas à nous contacter