Vente
Maison
à
Noisy-le-Grand
947 000 €
Noisy-le-Grand (93160)
iad France - Hassan Amasraoui vous propose: À Noisy-le-Grand, dans le domaine prisé et sécurisé de Villeflix, superbe propriété de 303 m² offrant des prestations de standing et une piscine chauffée.
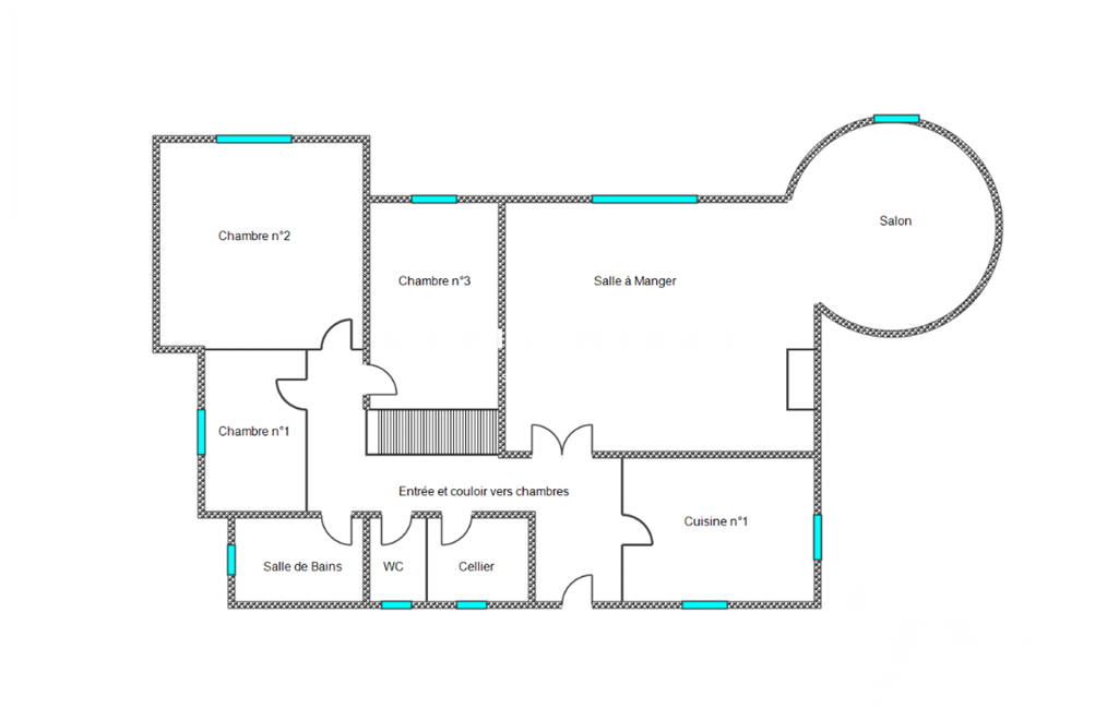
Au rez-de-chaussée, un vaste hall d'entrée dessert un séjour lumineux aux beaux volumes, une cuisine aménagée et équipée, une buanderie et un cellier. Une suite parentale avec salle d'eau et WC, un bureau, une chambre supplémentaire et des toilettes complètent ce niveau.
À l'étage, un palier distribue trois grandes chambres parentales de 26 à 29 m², chacune bénéficiant d'espaces privatifs (salle d'eau, salle de bains et pièces attenantes), garantissant confort et intimité.
Un garage complète le bien. Résidence fermée et sécurisée.
Contactez moi pour plus d'informations.
Honoraires d'agence à la charge du vendeur.
Information d'affichage énergétique sur ce bien : classe ENERGIE E indice 275 et classe CLIMAT B indice 9. Les informations sur les risques auxquels ce bien est exposé, y compris l'obligation légale de débroussaillement, sont disponibles sur le site Géorisques : http://www.georisques.gouv.fr.
La présente annonce immobilière a été rédigée sous la responsabilité éditoriale de M Hassan Amasraoui mandataire indépendant en immobilier (sans détention de fonds), agent commercial de la SAS I@D France immatriculé au RSAC de Meaux sous le numéro 792210395, titulaire de la carte de démarchage immobilier pour le compte de la société I@D France SAS.
Mandat : 1797773
Diagnostic de Performance Énergétique (DPE)
Plus d'informations
-
Descriptif
- Nbre. d'étages : 2
- Nbre. de chambres : 6
- Nb. de pièces : 9
-
Equipement
- Cheminée
- Chauffage : gaz radiateur
-
Superficies
- Superficie terrain : 1026 m²
- Surface habitable : 303 m²
-
Etat
- Année de construction : 1979
-
Conditions
- Honoraires à charge de : vendeur
Localisation
Contactez nous
Pour plus d'informations sur cette annonce, n'hésitez pas à nous contacter