Vente
Appartement
à
Aussois
125 000 €
Aussois (73500)
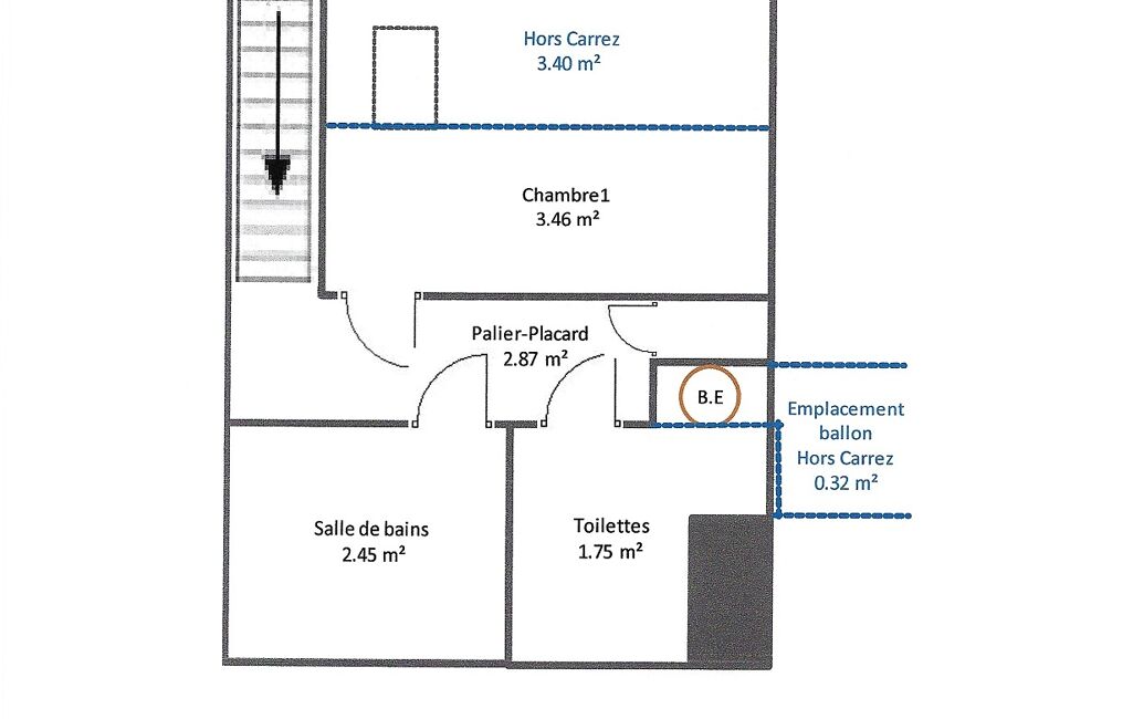
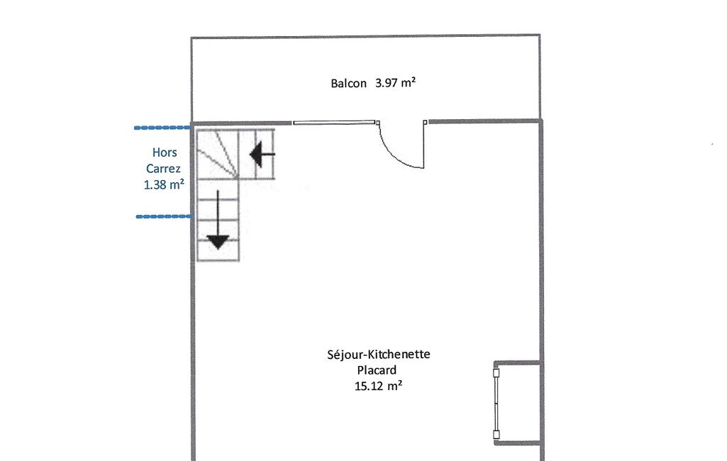
iad France - Sophie Gaspar vous propose: AUSSOIS - RÉSIDENCE 3* LES FLOCONS D'ARGENT - BAIL COMMERCIAL JUSQU'AU 30 AVRIL 2027 - APPARTEMENT T2 EN DUPLEX - 4 COUCHAGES - SITUÉ AU 3ème ÉTAGE et ORIENTÉ EST comprenant en rez-de-chaussée : une pièce de vie avec coin cuisine. A l'étage : une chambre, une salle de bail et un WC séparé. Un balcon de 3,97* m².
Cet appartement est vendu avec un emplacement de parking en souterrain.
La porte fenêtre, les convecteurs et le sol de la chambre ont été remplacés en 2025.
Les demandes de renseignements et de rendez-vous de visite se font uniquement par téléphone.
La presente annonce immobiliere vise 2 lots situés dans une copropriété de 318 lots au total et ne faisant l'objet d'aucune procédure en cours citée à l'article L. 721-1 du code de la construction et de l'habitation. Montant moyen mensuel de charges déclaré par le vendeur : 66.67€ par mois (soit 800 € annuel). Honoraires d'agence à la charge du vendeur.
Information d'affichage énergétique sur ce bien : classe ENERGIE E indice 376 et classe CLIMAT C indice 11. Les informations sur les risques auxquels ce bien est exposé, y compris l'obligation légale de débroussaillement, sont disponibles sur le site Géorisques : http://www.georisques.gouv.fr.
La présente annonce immobilière a été rédigée sous la responsabilité éditoriale de Mme Sophie Gaspar mandataire indépendant en immobilier (sans détention de fonds), agent commercial de la SAS I@D France immatriculé au RSAC de CHAMBERY sous le numéro 844932939, titulaire de la carte de démarchage immobilier pour le compte de la société I@D France SAS.
Mandat : 1945243
Diagnostic de Performance Énergétique (DPE)
Plus d'informations
-
Descriptif
- Ascenseur
- Nbre. d'étages : 4
- Nbre. de chambres : 1
- Nb. de pièces : 2
-
Loi ALUR
- Copropriété
- Nombre de lots de la copropriété : 318
- Moyenne de la quote part(an) : 800 €
-
Equipement
- Câble TV
- Chauffage : individuel electrique radiateur
-
Etat
- Année de construction : 2007
-
Conditions
- Honoraires à charge de : vendeur
-
Superficies
- Surface habitable : 25 m²
Localisation
Contactez nous
Pour plus d'informations sur cette annonce, n'hésitez pas à nous contacter