Vente
Appartement
à
La Ciotat
890 000 €
La Ciotat (13600)
iad France - Pierre Magerand (06 37 21 92 42) vous propose : Appartement T4 avec terrasse à La Ciotat.
Située avenue Fernand Gassion, la résidence Cap Méditerranée offre un cadre de vie exceptionnel entre ville, mer et nature. À seulement quelques minutes des plages et du vieux port, cette adresse conjugue tranquillité, confort moderne et proximité des commodités. Disponible 2026.
Un appartement raffiné :
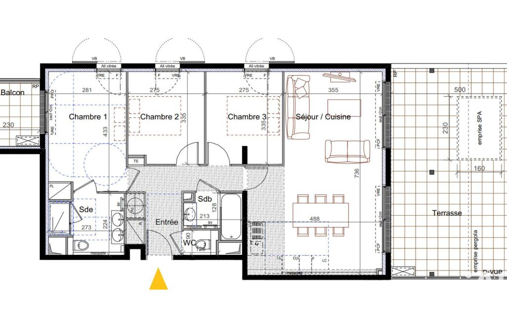
Situé au 4 ème étage, cet appartement T4 de 79 m² environ habitables se prolonge par une terrasse de 37 m² environ.
- Séjour/cuisine de 31 m² environ.
- Trois chambres confortables.
- Salle de bains et salle d'eau modernes.
- Annexe incluse : deux parkings intérieurs.
De belles prestations :
- Pompe à chaleur triple service : rafraîchissement d’air, chauffage et production d’eau chaude sanitaire.
- Volets roulants électriques et menuiseries PVC haute performance.
- Espaces verts paysagers et proximité immédiate du parc du Domaine de la Tour.
L’art de vivre à La Ciotat :
- À 10 minutes à pied des plages et 15 minutes du vieux port.
- Commerces, écoles et services accessibles à pied.
- Accès rapide à l’A50 vers Marseille, Toulon et Aubagne.
- Environnement calme et verdoyant au cOEur du Parc national des Calanques.
N’hésitez pas à me contacter pour plus d’informations ou pour un accompagnement sur mesure.
Honoraires d’agence à la charge du vendeur. Bien non soumis au DPE. Les informations sur les risques auxquels ce bien est exposé sont disponibles sur le site Géorisques : www.georisques.gouv.fr. La présente annonce immobilière a été rédigée sous la responsabilité éditoriale de M. Pierre Magerand EI (ID 86098), mandataire indépendant en immobilier (sans détention de fonds), agent commercial de la SAS I@D France immatriculé au RSAC de Cusset sous le numéro 938729175, titulaire de la carte de démarchage immobilier pour le compte de la société I@D France SAS.
Retrouvez tous nos biens sur notre site internet. www.iadfrance.fr
Mandat : 1822588-10
Diagnostic de Performance Énergétique (DPE)
Plus d'informations
-
Descriptif
- Étage du bien : 4eme
- Terrasse
- Ascenseur
- Nbre. d'étages : 4
- Nbre. de chambres : 3
- Nb. Parking : 1
- Nb. de pièces : 4
-
Equipement
- Digicode
- Placards
- Interphone
- Climatisation
-
Conditions
- Honoraires à charge de : vendeur
-
Superficies
- Surface habitable : 79 m²
Localisation
Contactez nous
Pour plus d'informations sur cette annonce, n'hésitez pas à nous contacter