Vente
Maison
à
Villiers-le-Bel
275 000 €
Villiers-le-Bel (95400)
iad France - Elodie Vivien vous propose: EXCLUSIVITÉ – Maison familiale dans un lotissement très recherché
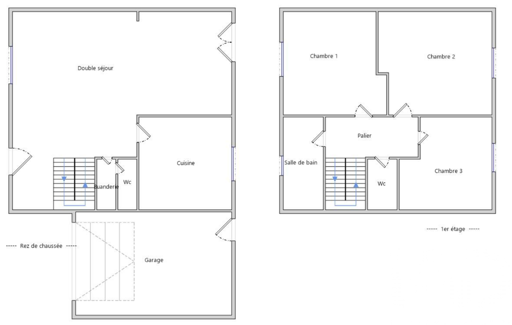
Située au cOEur d’un lotissement prisé, découvrez cette maison mitoyenne de type R+1 offrant une surface au sol d’environ 94 m², édifiée sur un terrain de 190 m².
Au rez-de-chaussée, vous trouverez une entrée, un séjour lumineux ouvrant sur une grande terrasse et un jardin d’environ 90 m², un salon, une cuisine, des WC séparés ainsi que des espaces de rangement.
À l’étage, un dégagement dessert trois chambres, une salle de bains et des WC séparés.
Ce bien est complété par un garage accolé, offrant un espace de stationnement et de stockage supplémentaire.
Une maison idéale pour une famille, dans un environnement calme et recherché, proche des commodités.
À visiter sans tarder !
La presente annonce immobiliere vise 1 lot situé dans une copropriété de 2 lots au total et ne faisant l'objet d'aucune procédure en cours citée à l'article L. 721-1 du code de la construction et de l'habitation. Montant moyen mensuel de charges déclaré par le vendeur : 20€ par mois (soit 240 € annuel). Honoraires d'agence à la charge du vendeur.
Information d'affichage énergétique sur ce bien : classe ENERGIE D indice 196 et classe CLIMAT B indice 7. Les informations sur les risques auxquels ce bien est exposé, y compris l'obligation légale de débroussaillement, sont disponibles sur le site Géorisques : http://www.georisques.gouv.fr.
La présente annonce immobilière a été rédigée sous la responsabilité éditoriale de Mme Elodie Vivien mandataire indépendant en immobilier (sans détention de fonds), agent commercial de la SAS I@D France immatriculé au RSAC de PONTOISE sous le numéro 917558785, titulaire de la carte de démarchage immobilier pour le compte de la société I@D France SAS.
Mandat : 1955682
Diagnostic de Performance Énergétique (DPE)
Plus d'informations
-
Descriptif
- Terrasse
- Nbre. d'étages : 2
- Nbre. de chambres : 3
- Nb. de pièces : 4
-
Loi ALUR
- Copropriété
- Nombre de lots de la copropriété : 2
- Moyenne de la quote part(an) : 240 €
-
Superficies
- Superficie terrain : 190 m²
- Surface habitable : 91 m²
-
Equipement
- Chauffage : electrique radiateur
-
Conditions
- Honoraires à charge de : vendeur
Localisation
Contactez nous
Pour plus d'informations sur cette annonce, n'hésitez pas à nous contacter