Vente
Maison
à
Toulon
950 000 €
Toulon (83200)
iad France - Helene Queste Angeli vous propose: Toulon Faron – Propriété de caractère avec vue rade et fort potentiel
Sur les hauteurs de Toulon, dans le secteur recherché du Faron, cette propriété bénéficie d’un emplacement particulièrement rare : un environnement dominant avec vue dégagée sur la rade, tout en restant à proximité immédiate du quartier Claret, des commodités et des transports accessibles à pied.
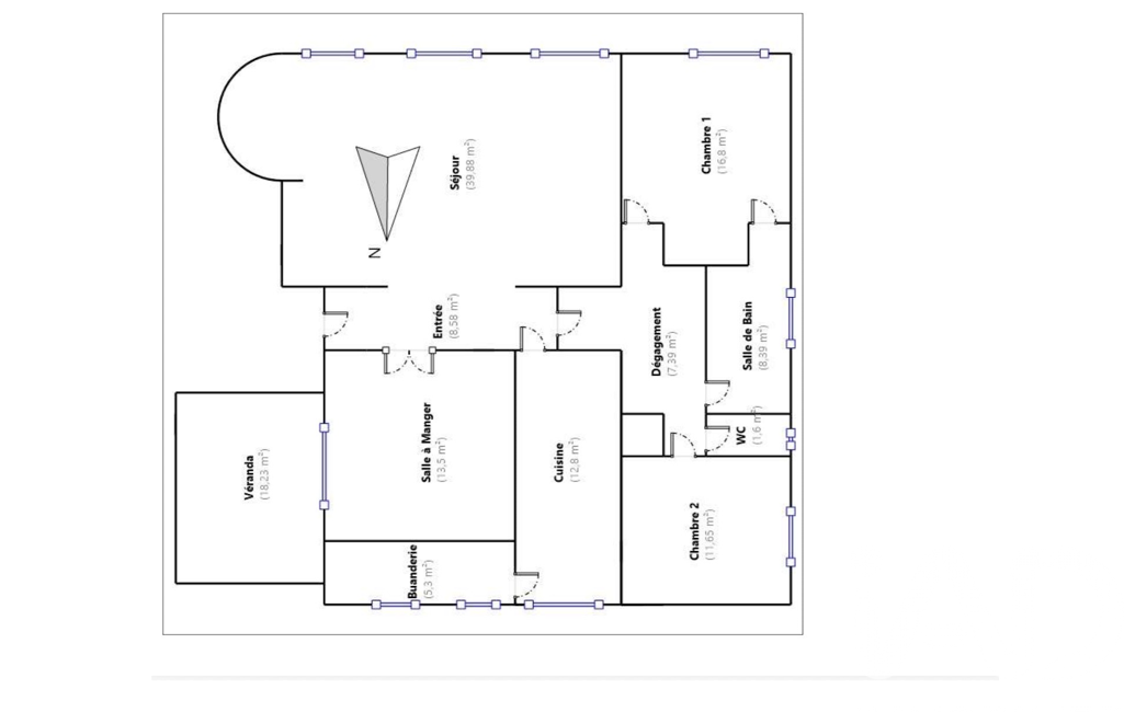
Édifiée dans les années 50, cette maison à l’architecture avant-gardiste pour son époque (toit plat, lignes modernes) développe une surface de 275 m2 au sol. Construite avec des matériaux traditionnels, cette propriété se distingue par son style affirmé, ses volumes généreux et son potentiel de transformation.,Les espaces de vie, baignés de lumière, s’ouvrent sur une vue dominante sur Toulon et sa rade.
⸻
Distribution :
•Plusieurs espaces de vie répartis sur deux niveaux
•4 chambres + studio indépendant
•2 salles de bain + salle d’eau
•Cuisine, salle à manger et séjour spacieux
•Véranda et annexes (cellier, buanderie…)
⸻
Extérieurs & accès
•Double garage (de 18 m2 chacun)
•Jardin aux essences méditerranéennes, en grande partie plat
•Espaces extérieurs variés permettant de profiter des lieux à tout moment de la journée
•Ascenseur desservant les niveaux
•Cabanon de jardin
•Accès aisé
⸻
Ses atouts :
✔ Architecture singulière
✔ Vue rade et faron
✔ Emplacement Faron avec vie à pied possible
✔ Volumes et configuration modulable
✔ Double habitation d’origine (fort potentiel)
⸻
À prévoir : Des travaux de rénovation sont à envisager pour moderniser l’ensemble et valoriser pleinement le bien.
⸻
Mon avis : De nombreux atouts pour cette maison à l’architecture singulière et aux volumes généreux. Pensée à l’origine comme une double habitation, elle offre aujourd’hui de nombreuses possibilités d’aménagement dans un secteur très recherché.
⸻
Ouvert à la collaboration inter-agences
Honoraires d'agence à la charge du vendeur.
Information d'affichage énergétique sur ce bien : classe ENERGIE E indice 326 et classe CLIMAT C indice 12. Les informations sur les risques auxquels ce bien est exposé, y compris l'obligation légale de débroussaillement, sont disponibles sur le site Géorisques : http://www.georisques.gouv.fr.
La présente annonce immobilière a été rédigée sous la responsabilité éditoriale de Mme Helene Queste Angeli mandataire indépendant en immobilier (sans détention de fonds), agent commercial de la SAS I@D France immatriculé au RSAC de TOULON sous le numéro 834276859, titulaire de la carte de démarchage immobilier pour le compte de la société I@D France SAS.
Mandat : 1989950
Diagnostic de Performance Énergétique (DPE)
Plus d'informations
-
Descriptif
- Terrasse
- Ascenseur
- Nbre. d'étages : 2
- Nbre. de chambres : 4
- Nb. Parking : 1
- Nb. de pièces : 8
-
Equipement
- Câble TV
- Cheminée
- Placards
- Chauffage : electrique radiateur
- Climatisation
-
Superficies
- Superficie terrain : 1300 m²
- Surface habitable : 275 m²
-
Etat
- Année de construction : 1955
-
Conditions
- Honoraires à charge de : vendeur
Localisation
Contactez nous
Pour plus d'informations sur cette annonce, n'hésitez pas à nous contacter