Annonce détaillée

Vente
Maison à Bordeaux
875 000 

Détails du bien

Pièce(s)
5 pièces
Salle(s) de bain
4
Surface
178 m²
Surface terrain
163 m²
Orientation
-

Plus d'informations

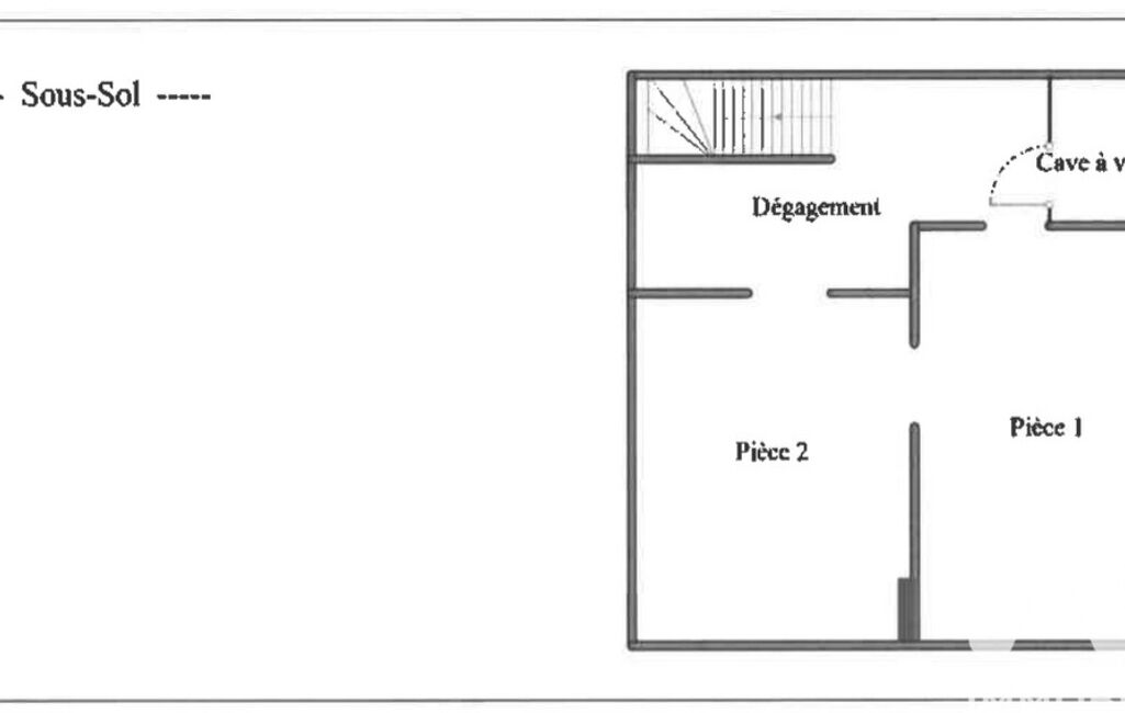
  • Descriptif
    • Terrasse
    • Nbre. d'étages : 2
    • Nbre. de chambres : 4
    • Nb. de pièces : 5
  • Superficies
    • Superficie terrain : 163 m²
    • Surface habitable : 178 m²
  • Equipement
    • Chauffage : gaz radiateur
  • Etat
    • Année de construction : 1920
  • Conditions
    • Honoraires à charge de : vendeur

Localisation

Contactez nous

Pour plus d'informations sur cette annonce, n'hésitez pas à nous contacter

Anthony Heymann

Annonce 2436 / 77211