Vente
Maison
à
Marennes
240 000 €
Marennes (17320)
iad France - Magalie MURAIL vous propose: A vendre maison neuve de 91 m² construite en 2025 hors d'eau hors d'air idéale pour un projet personnalisé .
État d avancement :
- Gros OEuvre réalisé.
- Hors d'eau hors d'air ( toiture, menuseries et volets roulant posées).
- Cloisons intérieur déjà créées .
- Système chauffage déjà installé ( clim réversible).
- Réseau en place.
Aménagements intérieur prévu :
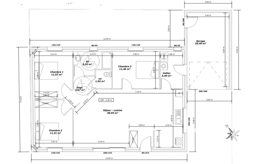
Belle piece de vie lumineuse avec espace prévue pour une cuisine ouverte de 40 m² environ.
- 3 chambres de 11 ,50 m² environ
- Espace prévu pour une salle d'eau de 5,35 m²
- wc de 1,95 m²
- Cellier de 5,4 m²
- Garage attenant avec prise de charge pour voiture électrique de 20 m²
Travaux restants:
- Installation de la cuisine.
- Aménagement complèt de la salle d'eau et du wc.
- Pose des sols (carrelage/ revêtement).
- Finitions intérieur selon vos envies .
Cette maison est idéale pour:
- Un primo-accédant souhaitant personnaliser son bien.
- Investisseur.
- Acquéreurs cherchant a maîtriser son budget en réalisant les finitions.
Surface habitable: 91 m²
Parcelle : 391 m²
Située à Marennes.
Contacter moi pour plus d'informations ou organiser une visite!
Honoraires d'agence à la charge du vendeur.
Bien non soumis au DPE. Les informations sur les risques auxquels ce bien est exposé, y compris l'obligation légale de débroussaillement, sont disponibles sur le site Géorisques : http://www.georisques.gouv.fr.
La présente annonce immobilière a été rédigée sous la responsabilité éditoriale de Mme Magalie MURAIL mandataire indépendant en immobilier (sans détention de fonds), agent commercial de la SAS I@D France immatriculé au RSAC de LA ROCHELLE sous le numéro 879122513, titulaire de la carte de démarchage immobilier pour le compte de la société I@D France SAS.
Mandat : 1954484
Diagnostic de Performance Énergétique (DPE)
Plus d'informations
-
Descriptif
- Terrasse
- Nbre. de chambres : 3
- Nb. de pièces : 4
-
Superficies
- Surface terrasse : 13 m²
- Superficie terrain : 391 m²
- Surface habitable : 91 m²
-
Equipement
- Chauffage : electrique
-
Etat
- Année de construction : 2025
-
Conditions
- Honoraires à charge de : vendeur
Localisation
Contactez nous
Pour plus d'informations sur cette annonce, n'hésitez pas à nous contacter