Vente
Maison
à
Lembeye
205 000 €
Lembeye (64350)
iad France - Laurence Jungas vous propose: Belle maison familiale rénovée énergétiquement avec grand terrain et fort potentiel !
Vous recherchez de l’espace, du confort et des possibilités d’aménagement ? Cette maison spacieuse saura vous séduire par ses nombreux atouts.
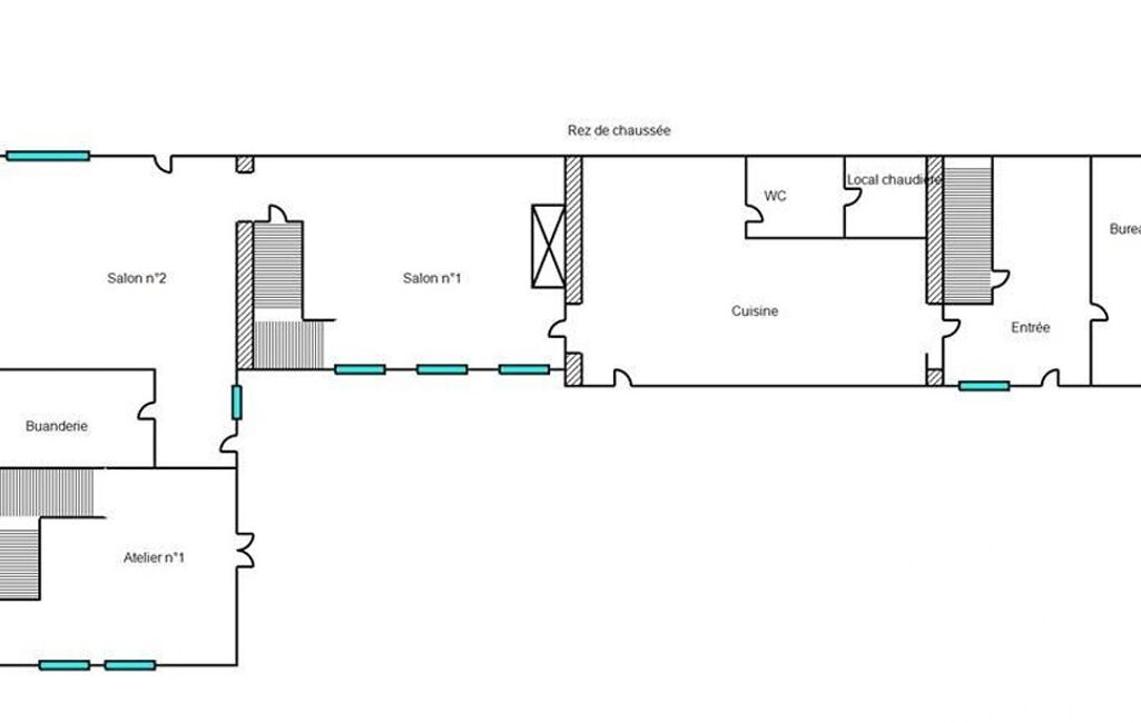
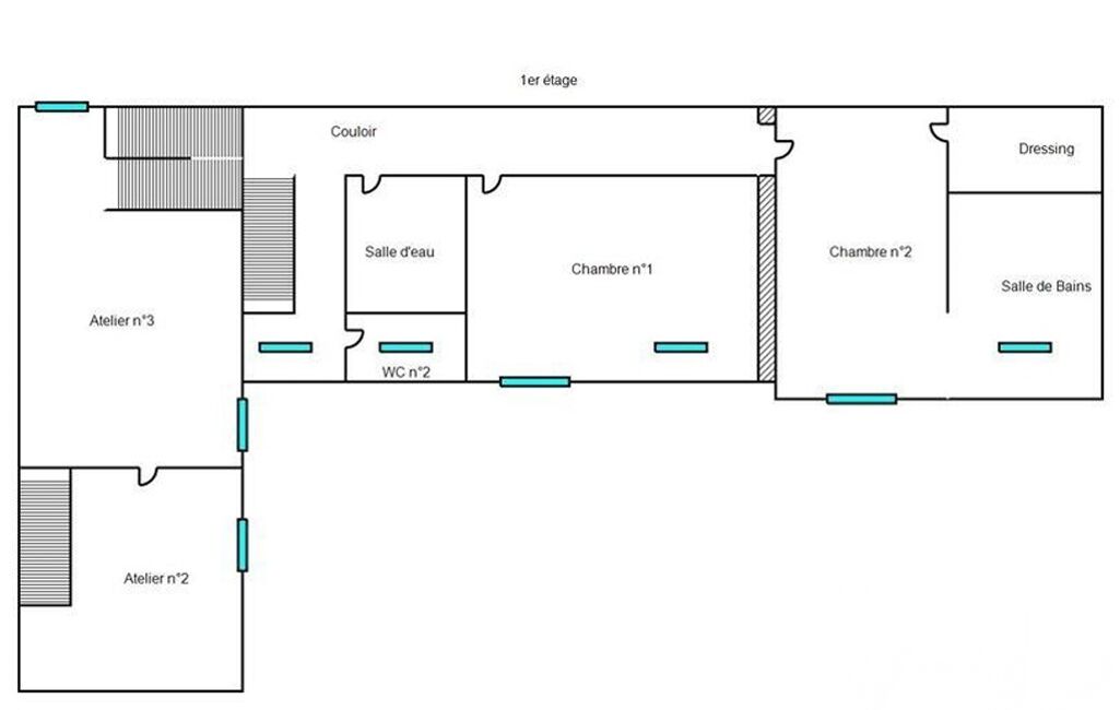
Elle se compose de 3 chambres confortables, d’un grand séjour, d’une cuisine ouverte idéale pour partager des moments en famille, ainsi que d’un salon chaleureux.
Côté confort et économies d’énergie :
La maison a bénéficié d’une rénovation énergétique, avec l’installation d’une pompe à chaleur, offrant un chauffage performant et économique au quotidien.
À l’extérieur, vous profiterez d’un environnement agréable avec :
- une cour fermée
- un grand parking aménagé
- un terrain arboré spacieux
- un puits, véritable atout pour l’arrosage du jardin ou différents usages.
Une grange attenante aménageable permet d’envisager de nombreux projets : agrandissement de la maison, création d’un logement indépendant, gîte, atelier ou activité annexe.
Un bien à découvrir sans tarder...
Honoraires d'agence à la charge du vendeur.
Bien non soumis au DPE. Les informations sur les risques auxquels ce bien est exposé, y compris l'obligation légale de débroussaillement, sont disponibles sur le site Géorisques : http://www.georisques.gouv.fr.
La présente annonce immobilière a été rédigée sous la responsabilité éditoriale de Mme Laurence Jungas mandataire indépendant en immobilier (sans détention de fonds), agent commercial de la SAS I@D France immatriculé au RSAC de TARBES sous le numéro 834251480, titulaire de la carte de démarchage immobilier pour le compte de la société I@D France SAS.
Mandat : 1964396
Diagnostic de Performance Énergétique (DPE)
Plus d'informations
-
Equipement
- Câble TV
- Cheminée
- Chauffage : electrique
- Climatisation
-
Descriptif
- Nbre. d'étages : 1
- Nbre. de chambres : 3
- Nb. de pièces : 5
-
Superficies
- Superficie terrain : 1980 m²
- Surface habitable : 140 m²
-
Etat
- Année de construction : 1829
-
Conditions
- Honoraires à charge de : vendeur
Localisation
Contactez nous
Pour plus d'informations sur cette annonce, n'hésitez pas à nous contacter