Vente
Appartement
à
Clarensac
257 000 €
Clarensac (30870)
iad France - Penelope Stoker (06 50 24 86 27) vous propose : Appartement T3 avec terrasse et parking – Clarensac
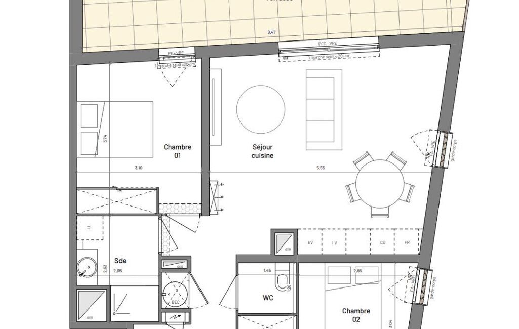
À Clarensac, au sein d’une résidence neuve, découvrez cet appartement de type T3 situé au 1er étage.
D’une surface habitable de 64,7 m² environ, il offre une distribution fonctionnelle et agréable :
Une belle pièce de vie séjour / cuisine de 31,8 m² environ,
Deux chambres confortables de 11,7 m² environ et 10,9 m² environ,
Une salle d’eau de 4,6 m² environ,
Un WC indépendant,
Une entrée optimisant l’espace.
Vous profiterez également d’une terrasse de 20,3 m² environ, idéale pour les repas en extérieur et les moments de détente.
Ce bien constitue une belle opportunité d’acquérir un appartement neuf, avec des prestations modernes et le confort d’une construction récente, dans un environnement calme et recherché.
Pour plus d’informations sur le programme, les prestations ou organiser une visite, merci de me contacter.
Honoraires d’agence à la charge du vendeur. Bien non soumis au DPE. Les informations sur les risques auxquels ce bien est exposé sont disponibles sur le site Géorisques : www.georisques.gouv.fr. La présente annonce immobilière a été rédigée sous la responsabilité éditoriale de Mme Penelope Stoker EI (ID 83102), mandataire indépendant en immobilier (sans détention de fonds), agent commercial de la SAS I@D France immatriculé au RSAC de Paris sous le numéro 930194964, titulaire de la carte de démarchage immobilier pour le compte de la société I@D France SAS.
Retrouvez tous nos biens sur notre site internet. www.iadfrance.fr
Mandat : 1903932-5
Diagnostic de Performance Énergétique (DPE)
Plus d'informations
-
Descriptif
- Étage du bien : 1er
- Nb. de pièces : 3
-
Etat
- Année de construction : 2027
-
Conditions
- Honoraires à charge de : vendeur
-
Superficies
- Surface habitable : 66 m²
Localisation
Contactez nous
Pour plus d'informations sur cette annonce, n'hésitez pas à nous contacter