Annonce détaillée

Vente
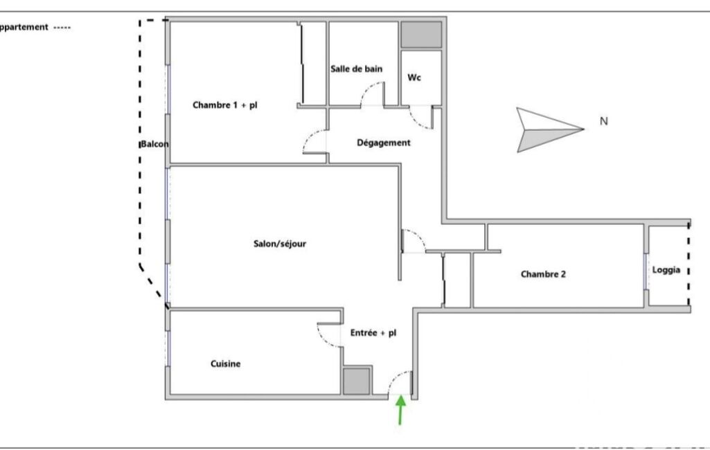
Appartement à Longjumeau
199 900 

Détails du bien

Pièce(s)
3 pièces
Salle(s) de bain
2
Surface
71 m²
Surface terrain
-
Orientation
-

Plus d'informations

  • Descriptif
    • Cave
    • Ascenseur
    • Nbre. d'étages : 4
    • Nbre. de chambres : 2
    • Nb. de pièces : 3
  • Equipement
    • Digicode
    • Chauffage : individuel electrique radiateur
    • Interphone
  • Loi ALUR
    • Copropriété
    • Nombre de lots de la copropriété : 328
    • Moyenne de la quote part(an) : 1 800 €
  • Superficies
    • Surface du balcon : 6 m²
    • Surface habitable : 71 m²
  • Etat
    • Année de construction : 1991
  • Conditions
    • Honoraires à charge de : vendeur

Localisation

Contactez nous

Pour plus d'informations sur cette annonce, n'hésitez pas à nous contacter

Annabelle Brieda

Annonce 2071 / 75987