Vente
Appartement
à
Èze
3 242 000 €
Èze (06360)
iad France - Sarah Rozière (06 99 86 19 42) vous propose : Appartement T4 d’exception avec terrasse et couloir de nage à Èze.
Entre ciel et mer, La Baie des Saphirs incarne l’élégance et la rareté des plus belles adresses de la Côte d’Azur. Surplombant la Méditerranée et le village perché d’Èze, cette résidence de prestige offre un art de vivre unique, mêlant sérénité, lumière et raffinement absolu. Disponible 2026.
Un appartement d’exception :
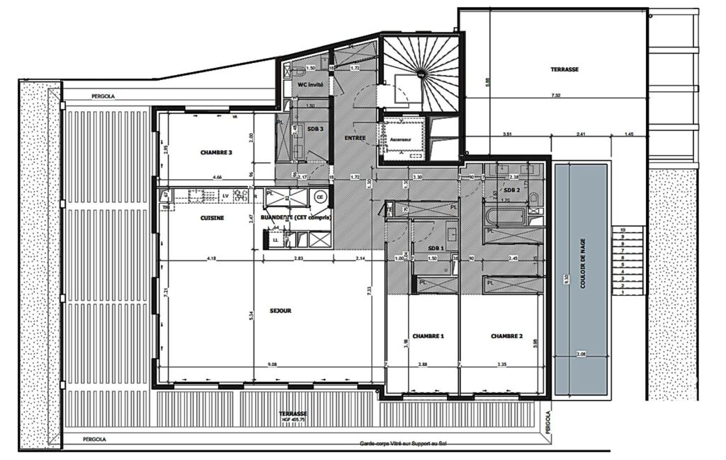
Situé au 3 ème étage, cet appartement T4 de 156 m² environ habitables se prolonge par une terrasse spectaculaire de 158 m² environ, agrémentée d’un couloir de nage privatif et d’une vue panoramique sur la mer.
Un bien pensé dans les moindres détails :
- Séjour/salle à manger de 53 m² environ, baigné de lumière grâce à de larges baies vitrées.
- Trois suites avec salles de bains.
- Ascenseur privé.
Des prestations de prestige :
- Climatisation réversible et domotique intégrée pour piloter confort et sécurité.
- Menuiseries aluminium haut de gamme et garde-corps vitrés offrant une transparence totale sur la mer.
- Douches à l’italienne avec ciel de pluie, plan vasque en pierre marbrière, robinetterie design.
- Volets roulants motorisés, porte palière A2P, box à ouverture électrique.
- Arrosage automatique et aménagement paysager inspiré des jardins méditerranéens.
- couloir de nage privatifs, conçus pour une expérience unique au-dessus de la Méditerranée.
L’art de vivre à Èze :
- Une adresse rare, entre Monaco (14 min) et Nice (24 min).
- À quelques minutes du village médiéval d’Èze et de la plage d’Èze-sur-Mer.
- Environnement paisible, bercé par le parfum des bougainvilliers et des oliviers.
- Résidence nichée dans un écrin naturel d’exception, à flanc de colline face à la grande bleue.
Ce bien d’exception conjugue prestige, discrétion et excellence, au cOEur d’un domaine où chaque détail a été pensé comme une OEuvre d’art.
N’hésitez pas à me contacter pour plus d’informations ou pour un accompagnement sur mesure.
Honoraires d’agence à la charge du vendeur. Bien non soumis au DPE. Les informations sur les risques auxquels ce bien est exposé sont disponibles sur le site Géorisques : www.georisques.gouv.fr. La présente annonce immobilière a été rédigée sous la responsabilité éditoriale de Mlle Sarah Rozière EI (ID 83696), mandataire indépendant en immobilier (sans détention de fonds), agent commercial de la SAS I@D France immatriculé au RSAC de Clermont-Ferrand sous le numéro 978616993, titulaire de la carte de démarchage immobilier pour le compte de la société I@D France SAS.
Retrouvez tous nos biens sur notre site internet. www.iadfrance.fr
Mandat : 1867578-3
Diagnostic de Performance Énergétique (DPE)
Plus d'informations
-
Descriptif
- Étage du bien : 3eme
- Terrasse
- Ascenseur
- Nbre. d'étages : 3
- Nbre. de chambres : 3
- Nb. Parking : 1
- Nb. de pièces : 4
-
Equipement
- Digicode
- Interphone
- Climatisation
-
Etat
- Année de construction : 2026
-
Conditions
- Honoraires à charge de : vendeur
-
Superficies
- Surface habitable : 156 m²
Localisation
Contactez nous
Pour plus d'informations sur cette annonce, n'hésitez pas à nous contacter