Vente
Maison
à
Briare
225 000 €
Briare (45250)
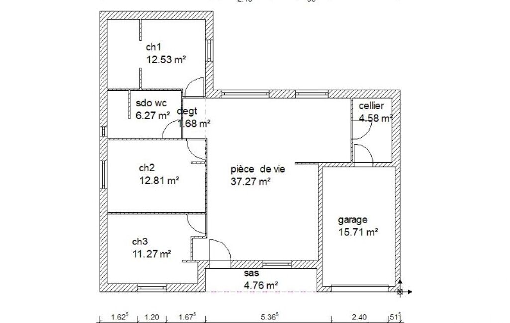
iad France - Guy Mallet vous propose: Maison traditionnelle 2023 de plain-pied 5 pièces / 3 chambres le tout entièrement carrelé et en parfait état spécialement construite avec les normes PMR (Personnes à Mobilité Réduite) avec garage, terrasse et jardin clos de 990m². Vous serez séduits par les matériaux de qualité et l'exposition ouest qui permet une belle luminosité dans toutes les pièces. Terrasse carrelée sur l'arrière avec accès depuis la vaste salle de séjour. Derrière la cuisine ouverte équipée un cellier / buanderie renferme la pompe à chaleur et le coin lavage. Toutes les fenêtre sont en double vitrage avec volets roulants motorisés. Aucun travaux à prévoir. Fibre optique. Assainissement individuel aux normes. Une opportunité à saisir sans attendre. Coup de cOEur assuré !
Honoraires d'agence à la charge du vendeur.
Information d'affichage énergétique sur ce bien : classe ENERGIE A indice 62 et classe CLIMAT A indice 2. Les informations sur les risques auxquels ce bien est exposé, y compris l'obligation légale de débroussaillement, sont disponibles sur le site Géorisques : http://www.georisques.gouv.fr.
La présente annonce immobilière a été rédigée sous la responsabilité éditoriale de M Guy Mallet mandataire indépendant en immobilier (sans détention de fonds), agent commercial de la SAS I@D France immatriculé au RSAC de ORLEANS sous le numéro 523 370 658, titulaire de la carte de démarchage immobilier pour le compte de la société I@D France SAS.
Mandat : 1944549
Diagnostic de Performance Énergétique (DPE)
Plus d'informations
-
Descriptif
- Terrasse
- Nbre. de chambres : 3
- Nb. de pièces : 5
-
Equipement
- Câble TV
- Chauffage : electrique
-
Superficies
- Superficie terrain : 989 m²
- Surface habitable : 96 m²
-
Etat
- Année de construction : 2023
-
Conditions
- Honoraires à charge de : vendeur
Localisation
Contactez nous
Pour plus d'informations sur cette annonce, n'hésitez pas à nous contacter