Vente
Maison de village
à
Pernes-les-Fontaines
199 000 €
Pernes-les-Fontaines (84210)
iad France - Floriane Ruffin vous propose: Maison de Village Esprit Loft – Les Valayans
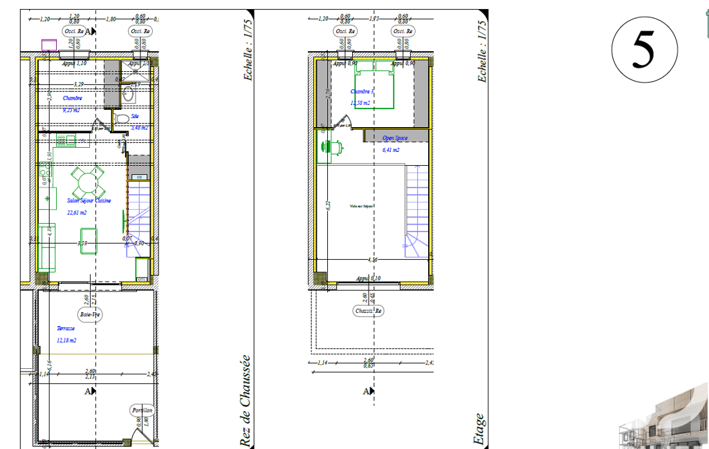
Découvrez cette maison de ville en cours de construction, issue d'une rénovation haut de gamme alliant style industriel et confort moderne. Située au cOEur du village, elle sera livrée au 3ème trimestre 2026 et répondra aux dernières normes en vigueur.
Caractéristiques principales :
• Volume d'exception : Séjour baigné de lumière avec 4m de hauteur sous plafond et grande baie vitrée type atelier.
• Agencement : Cuisine ouverte, 2 chambres (dont une en RDC), un bureau en mezzanine surplombant le séjour, et une salle d'eau avec douche à l'italienne et Wc.
• Extérieurs & Parking : Jardinet privatif de ~30 m² et 2 places de parking privatives.
• Confort : Climatisation réversible
Potentiel & Opportunités :
• Évolutivité : Possibilité d'étendre la surface à 78 m² (attentes structurelles déjà prévues pour un plancher supplémentaire en R+1).
• Choix : Deux autres biens similaires sont également disponibles dans ce projet.
Livraison prévue : T3 2026. Garanties constructeur et respect des normes thermiques inclus.
Honoraires d'agence à la charge du vendeur.
Bien non soumis au DPE. Les informations sur les risques auxquels ce bien est exposé, y compris l'obligation légale de débroussaillement, sont disponibles sur le site Géorisques : http://www.georisques.gouv.fr.
La présente annonce immobilière a été rédigée sous la responsabilité éditoriale de Mme Floriane Ruffin mandataire indépendant en immobilier (sans détention de fonds), agent commercial de la SAS I@D France immatriculé au RSAC de AVIGNON sous le numéro 912345733, titulaire de la carte de démarchage immobilier pour le compte de la société I@D France SAS.
Mandat : 1939447
Diagnostic de Performance Énergétique (DPE)
Plus d'informations
-
Descriptif
- Terrasse
- Nbre. d'étages : 2
- Nbre. de chambres : 2
- Nb. de pièces : 3
-
Equipement
- Chauffage : electrique
- Climatisation
-
Superficies
- Superficie terrain : 30 m²
- Surface habitable : 58 m²
-
Etat
- Année de construction : 2026
-
Conditions
- Honoraires à charge de : vendeur
Localisation
Contactez nous
Pour plus d'informations sur cette annonce, n'hésitez pas à nous contacter