Vente
Bastide
à
Peymeinade
2 350 000 €
Peymeinade (06530)
iad France - Estelle Coeugniet vous propose: Un havre de paix aux multiples visages, entre luxe provençal et rentabilité locative !
Perchée en position dominante, au cOEur d’un quartier résidentiel prisé de Peymeinade, cette superbe propriété de style provençal, entièrement rénovée avec goût, conjugue avec brio l’élégance intemporelle, la modernité des équipements et un potentiel rare pour les amateurs d’art de vivre ou d’investissement rentable.
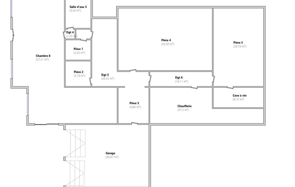
Avec environ 345 m² habitables sur un terrain clos et paysager de 7 500 m², cette demeure offre une intimité totale, aucun vis-à-vis, et une vue imprenable sur la réserve naturelle et les collines environnantes. Chaque pièce, baignée de lumière, s’ouvre sur de vastes terrasses exposées plein sud, plongeant sur un panorama apaisant.
- Une propriété pensée pour le confort et pour la rentabilité.
Exploitée avec succès en chambres d’hôtes de charme, l’ensemble est organisé actuellement en 2 appartements + 2 studios, avec cuisine équipée et salle de douches pour tous et une partie privative réservée aux propriétaires composée d'un vaste salon, d'une salle à manger chaleureuse, d'une très grande cuisine entièrement équipée de 3 chambres et d'une salle d'eau. Il est très facile de réorganiser les volumes pour créer une unique et somptueuse villa familiale ou de poursuivre une activité locative à haut rendement, notamment en location saisonnière type Airbnb.
- Des prestations haut de gamme à tous les niveaux
- Piscine au sel chauffée & jacuzzi pour des moments de détente en toute saison
- Vaste sous-sol avec cave à vin, Buanderie, et grande pièce polyvalente pouvant servir de salle de sport, jeux ou cinéma privé.
- Double garage 4 voitures, nombreux stationnements, deux entrées distinctes
- Terrains de pétanque & aire de volley-ball, intégrés à un jardin méditerranéen luxuriant (palmiers, oliviers, arbres fruitiers).
- Espaces extérieurs conçus comme de véritables pièces de vie : coin repas ombragé, salon d’été, bains de soleil, etc.
- Fosse sceptique aux normes, aucun travaux à prévoir !
- Un cadre de vie rare, entre nature, commodités et grands axes :
À 5 min des commerces et écoles,
À 15 min du lac de Saint-Cassien et des gorges de la Siagne,
À 30 min de Cannes,
A 25 min du Golf Terre Blanche,
Et à 40 min de l’aéroport international de Nice.
Ce bien d’exception offre autant de possibilités qu’il suscite d’émotions. Que vous cherchiez une résidence principale au charme unique, une maison secondaire familiale, ou un investissement rentable dans l’hôtellerie de charme, cette propriété est une valeur sûre, rare sur le marché.
Visite et informations 7j/7 !
Honoraires d'agence à la charge du vendeur.
Information d'affichage énergétique sur ce bien : classe ENERGIE C indice 160 et classe CLIMAT A indice 5. Les informations sur les risques auxquels ce bien est exposé, y compris l'obligation légale de débroussaillement, sont disponibles sur le site Géorisques : http://www.georisques.gouv.fr.
La présente annonce immobilière a été rédigée sous la responsabilité éditoriale de Mme Estelle Coeugniet mandataire indépendant en immobilier (sans détention de fonds), agent commercial de la SAS I@D France immatriculé au RSAC de ANTIBES sous le numéro 802755892, titulaire de la carte de démarchage immobilier pour le compte de la société I@D France SAS.
Mandat : 1868705
Diagnostic de Performance Énergétique (DPE)
Plus d'informations
-
Equipement
- Alarme
- Interphone
- Climatisation
-
Descriptif
- Nbre. d'étages : 1
- Nb. de pièces : 9
-
Superficies
- Superficie terrain : 7448 m²
- Surface habitable : 345 m²
-
Conditions
- Honoraires à charge de : vendeur
Localisation
Contactez nous
Pour plus d'informations sur cette annonce, n'hésitez pas à nous contacter