Vente
Maison
à
Plogastel-Saint-Germain
299 000 €
Plogastel-Saint-Germain (29710)
iad France - Jannick Gourmelun vous propose: Magnifique Maison Familiale au coeur du Pays Bigouden avec Jardin et Garage.
Cette charmante maison située à Plogastel-Saint-Germain offre un cadre de vie idéal pour une famille en quête de confort et d'espace. Avec une superficie totale de 149 m² et un terrain de 622 m², cette propriété spacieuse et lumineuse saura vous séduire par ses nombreux atouts.
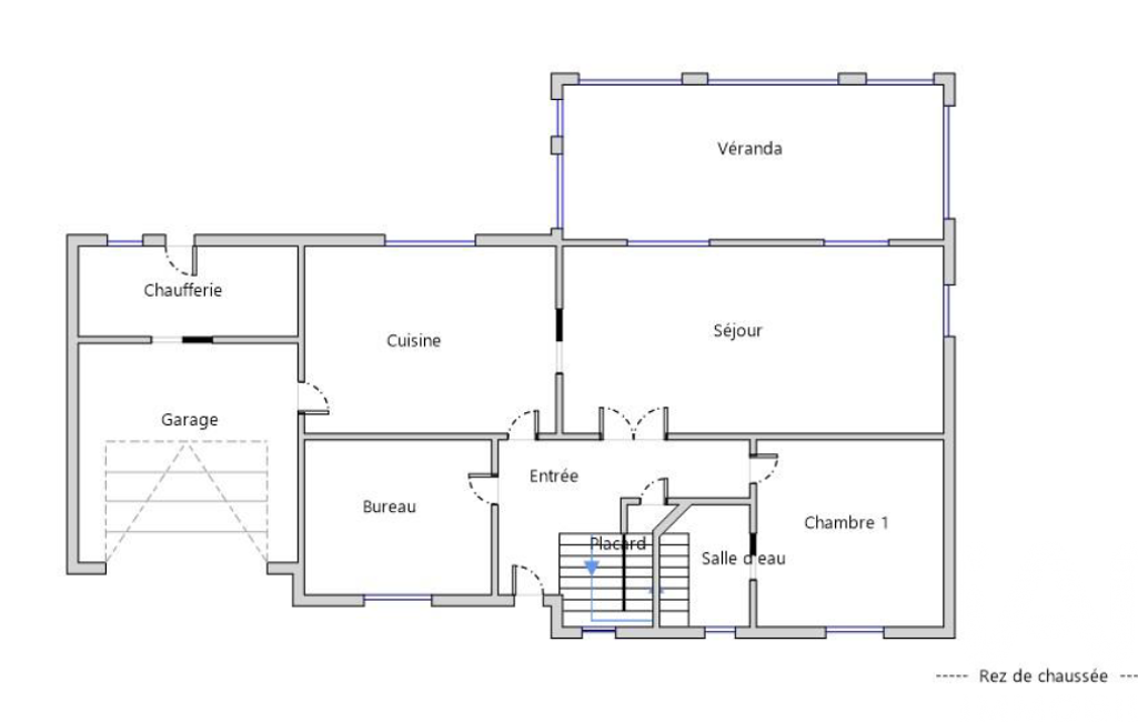
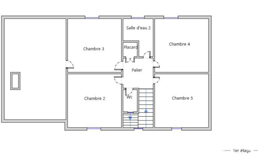
Aménagement Intérieur :
- 5 chambres spacieuses offrant un espace privé à chaque membre de la famille.
- 1 bureau idéal pour le télétravail ou les études.
- 2 salles d'eau et 2 toilettes pour un confort optimal.
- 1 cuisine équipée pour préparer de délicieux repas en famille.
- 1 véranda pour se détendre au soleil
Au rez-de-chaussée, un vaste espace de vie vous accueille, propice aux moments conviviaux en famille. Les pièces lumineuses et fonctionnelles offrent un cadre de vie agréable et chaleureux. L'ensemble de la maison est en bon état et bien entretenu, prêt à accueillir ses nouveaux propriétaires.
Aménagement Extérieur :
- Un jardin spacieux pour profiter des beaux jours en plein air.
- Un garage pour protéger votre véhicule et bénéficier d'un espace de rangement supplémentaire.
Les plus : ravalement récent, toiture révisée, combles isolés, jardin joliment paysagé.
Localisation :
La maison est située dans un quartier calme et résidentiel de Plogastel-Saint-Germain, offrant une atmosphère paisible et sécurisée. Proche des écoles, des commerces et des transports en commun, elle bénéficie d'une situation géographique pratique pour le quotidien.
Cette maison est idéale pour une famille désirant s'installer dans un cadre de vie confortable et agréable. A seulement 15 min de la plage et du GR34, 20 min de Quimper et 20 min de Pont-l'abbé.
Honoraires d'agence à la charge de l'acquéreur. Prix honoraires inclus : 299000 euros. Prix hors honoraires : 285000 euros. Honoraires TTC à la charge de l'acquéreur (4,91% du prix du bien hors honoraires) : 14000 euros.
Information d'affichage énergétique sur ce bien : classe ENERGIE D indice 164 et classe CLIMAT D indice 38. Les informations sur les risques auxquels ce bien est exposé, y compris l'obligation légale de débroussaillement, sont disponibles sur le site Géorisques : http://www.georisques.gouv.fr.
La présente annonce immobilière a été rédigée sous la responsabilité éditoriale de Mme Jannick Gourmelun mandataire indépendant en immobilier (sans détention de fonds), agent commercial de la SAS I@D France immatriculé au RSAC de QUIMPER sous le numéro 904985173, titulaire de la carte de démarchage immobilier pour le compte de la société I@D France SAS.
Mandat : 1964188
Diagnostic de Performance Énergétique (DPE)
Plus d'informations
-
Conditions
- Honoraires : 14 000 €
- Prix hors honoraires acquéreur : 285 000 €
- Honoraires à charge de : acquéreur
-
Descriptif
- Nbre. d'étages : 2
- Nbre. de chambres : 5
- Nb. de pièces : 8
-
Superficies
- Superficie terrain : 622 m²
- Surface habitable : 149 m²
-
Equipement
- Chauffage : fuel radiateur
Localisation
Contactez nous
Pour plus d'informations sur cette annonce, n'hésitez pas à nous contacter