Annonce détaillée

Vente
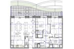
Appartement à Six-Fours-les-Plages
995 000 

Détails du bien

Pièce(s)
4 pièces
Salle(s) de bain
3
Surface
122 m²
Surface terrain
-
Orientation
ouest

Plus d'informations

  • Descriptif
    • Étage du bien : 1er
    • Nb. de WC : 2
    • Nb. de salles de bain : 1
    • Nb. de salles d'eau : 1
    • Terrasse
    • Ascenseur
    • Nbre. d'étages : 1
    • Accès handicapés
    • WC séparés
    • Nbre. de chambres : 3
    • Nb. de pièces : 4
  • Environnement
    • Vue : Dégagée
    • Orientation : ouest
  • Loi ALUR
    • Copropriété
    • Nombre de lots de la copropriété : 5
  • Superficies
    • Surface terrasse : 25 m²
    • Surface habitable : 122 m²
  • Equipement
    • Chauffage : individuel
  • Conditions
    • Honoraires à charge de : vendeur

Localisation

Contactez nous

Pour plus d'informations sur cette annonce, n'hésitez pas à nous contacter

SAJATIM

Annonce 2012 / 86290