Vente
Immeuble
à
Bordeaux
2 330 000 €
Bordeaux (33000)
iad France - Anthony Heymann vous propose: IMMEUBLE BORDEAUX - Proche grand théâtre
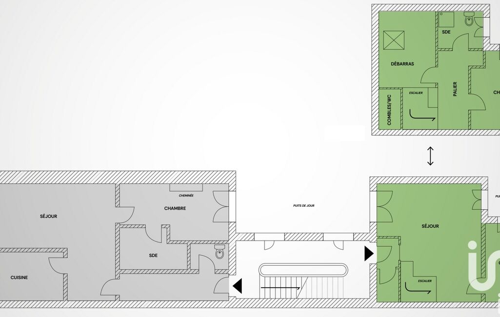
Idéalement situé dans une rue prestigieuse, secteur triangle or, immeuble pierre en bon état pour une surface totale plancher de 476 m²
Se compose de 7 lots cadastrés en secteur sauvegardé :
Un local commercial en RDC et 1er loué
Un appartement de type 2 au 2ème étage avant et un appartement de type 2 au 2ème étage arrière
Un appartement de type 2 au 3ème étage avant : libre de toute occupation
Un appartement de type 1 au 3ème étage arrière : libre de toute occupation
Un appartement de type 2 au 4ème étage avant : loué
Un appartement de type 2 duplex au 4ème étage arrière : libre de toute occupation
Pour marchands de biens ou investissement patrimoniale
Honoraires d'agence à la charge du vendeur.
Information d'affichage énergétique sur ce bien : classe ENERGIE D indice 203 et classe CLIMAT B indice 6. Les informations sur les risques auxquels ce bien est exposé, y compris l'obligation légale de débroussaillement, sont disponibles sur le site Géorisques : http://www.georisques.gouv.fr.
La présente annonce immobilière a été rédigée sous la responsabilité éditoriale de M Anthony Heymann mandataire indépendant en immobilier (sans détention de fonds), agent commercial de la SAS I@D France immatriculé au RSAC de bordeaux sous le numéro 824308506, titulaire de la carte de démarchage immobilier pour le compte de la société I@D France SAS.
Mandat : 1856743
Diagnostic de Performance Énergétique (DPE)
Plus d'informations
-
Descriptif
- Nbre. d'étages : 5
-
Etat
- Année de construction : 1850
-
Conditions
- Honoraires à charge de : vendeur
-
Superficies
- Surface habitable : 476 m²
Localisation
Contactez nous
Pour plus d'informations sur cette annonce, n'hésitez pas à nous contacter