Vente
Appartement
à
Pompertuzat
135 000 €
Pompertuzat (31450)
iad France - Muriel Alric vous propose: Appartement T2 RDC avec Terrasse et jardinet à Pompertuzat
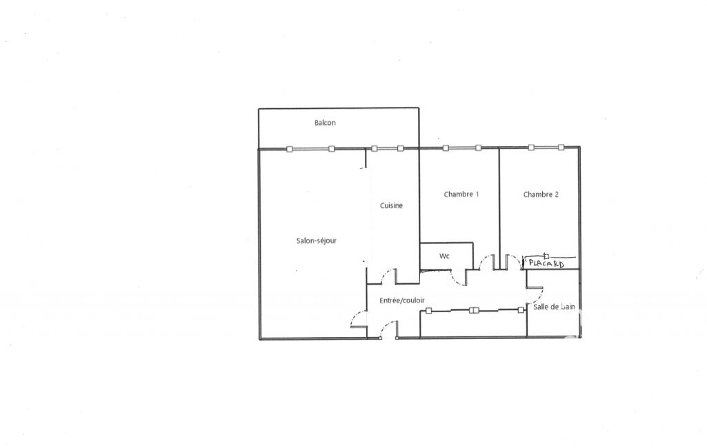
Situé dans le charmant village de Pompertuzat, cet appartement T2 de 42m² offre un cadre de vie paisible et agréable dans une résidence sécurisée et bien entretenue tout en restant proche des transports et commerces de proximité.
Il dispose d’une belle pièce de vie donnant sur la loggia et le jardinet privatif bordé d’une haie garantissant une parfaite intimité. Une cuisine fermée, un coin nuit bien séparé avec une chambre orientée sud, une salle de bain et un WC indépendant.
L'appartement bénéficie d'une exposition sud-est, offrant une belle luminosité tout au long de la journée. De plus, il est situé en rez-de-chaussée et bénéficie d’une jolie vue dégagée côté jardin de la copropriété.
Une place de parking privée est incluse à l’intérieur de la résidence sécurisée par un accès fermé pour plus de tranquilité.
L’intermarché du village se trouve à 2mn, le bord du canal à 3mn, la sortie autoroute de Montgiscard à 10mn et le métro de Ramonville à 15mn.
Ne manquez pas cette opportunité d'acquérir un appartement agréable avec terrasse dans un cadre paisible à Pompertuzat tout en restant proche de toutes les commodités.
La presente annonce immobiliere vise 2 lots situés dans une copropriété de 40 lots au total et ne faisant l'objet d'aucune procédure en cours citée à l'article L. 721-1 du code de la construction et de l'habitation. Montant moyen mensuel de charges déclaré par le vendeur : 55€ par mois (soit 660 € annuel). Honoraires d'agence à la charge du vendeur.
Information d'affichage énergétique sur ce bien : classe ENERGIE C indice 147 et classe CLIMAT A indice 5. Les informations sur les risques auxquels ce bien est exposé, y compris l'obligation légale de débroussaillement, sont disponibles sur le site Géorisques : http://www.georisques.gouv.fr.
La présente annonce immobilière a été rédigée sous la responsabilité éditoriale de Mme Muriel Alric mandataire indépendant en immobilier (sans détention de fonds), agent commercial de la SAS I@D France immatriculé au RSAC de Toulouse sous le numéro 834168577, titulaire de la carte de démarchage immobilier pour le compte de la société I@D France SAS.
Mandat : 2012733
Diagnostic de Performance Énergétique (DPE)
Plus d'informations
-
Equipement
- Câble TV
- Digicode
- Placards
- Chauffage : individuel electrique radiateur
- Interphone
-
Descriptif
- Terrasse
- Nbre. d'étages : 1
- Nbre. de chambres : 1
- Nb. Parking : 1
- Nb. de pièces : 2
-
Loi ALUR
- Copropriété
- Nombre de lots de la copropriété : 40
- Moyenne de la quote part(an) : 660 €
-
Etat
- Année de construction : 2010
-
Conditions
- Honoraires à charge de : vendeur
-
Superficies
- Surface habitable : 42 m²
Localisation
Contactez nous
Pour plus d'informations sur cette annonce, n'hésitez pas à nous contacter