Vente
Appartement
à
Suresnes
435 000 €
Suresnes (92150)
iad France - Audrey Lacour vous propose: Charmant 3 pièces en rez-de-jardin avec balcon, cave – Aucun travaux à prévoir !
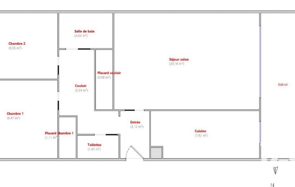
Situé dans une allée piétonne, au sein d’une résidence sécurisée, verdoyante et bien entretenue avec gardien, ce bel appartement de 3 pièces, traversant et parfaitement agencé, offre un cadre de vie agréable et paisible.
Le séjour lumineux de 20 m² s’ouvre sur un balcon de 7 m² donnant sur un jardin intérieur calme et sans circulation, idéal pour profiter des beaux jours.
La cuisine aménagée et équipée peut s’ouvrir sur le séjour selon vos envies.
Côté nuit, vous découvrirez deux chambres au calme, une salle d’eau moderne, des WC séparés ainsi que de nombreux rangements.
Une cave complète ce bien.
Un box fermé en sous-sol est disponible en supplément.
Vous n’aurez plus qu’à poser vos valises : aucun travaux à prévoir !
Emplacement idéal :
Écoles, commerces et espaces verts à proximité immédiate
Tram T2 Belvédère à 5 min à pied
Gare ligne L à 8 min à pied
La presente annonce immobiliere vise 2 lots situés dans une copropriété de 300 lots au total et ne faisant l'objet d'aucune procédure en cours citée à l'article L. 721-1 du code de la construction et de l'habitation. Montant moyen mensuel de charges déclaré par le vendeur : 125€ par mois (soit 1500 € annuel). Honoraires d'agence à la charge du vendeur.
Information d'affichage énergétique sur ce bien : classe ENERGIE C indice 151 et classe CLIMAT C indice 29. Les informations sur les risques auxquels ce bien est exposé, y compris l'obligation légale de débroussaillement, sont disponibles sur le site Géorisques : http://www.georisques.gouv.fr.
La présente annonce immobilière a été rédigée sous la responsabilité éditoriale de Mme Audrey Lacour mandataire indépendant en immobilier (sans détention de fonds), agent commercial de la SAS I@D France immatriculé au RSAC de NANTERRE sous le numéro 838327138, titulaire de la carte de démarchage immobilier pour le compte de la société I@D France SAS.
Mandat : 1887704
Diagnostic de Performance Énergétique (DPE)
Plus d'informations
-
Descriptif
- Cave
- Gardien
- Ascenseur
- Nbre. d'étages : 6
- Nbre. de chambres : 2
- Nb. Parking : 1
- Nb. de pièces : 3
-
Equipement
- Alarme
- Chauffage : individuel gaz radiateur
- Interphone
-
Loi ALUR
- Copropriété
- Nombre de lots de la copropriété : 300
- Moyenne de la quote part(an) : 1 500 €
-
Superficies
- Surface du balcon : 7 m²
- Surface habitable : 62 m²
-
Etat
- Année de construction : 1998
-
Conditions
- Honoraires à charge de : vendeur
Localisation
Contactez nous
Pour plus d'informations sur cette annonce, n'hésitez pas à nous contacter