Location
Bureau
à
Paris
4 866 € CC /mois
Paris (75008)
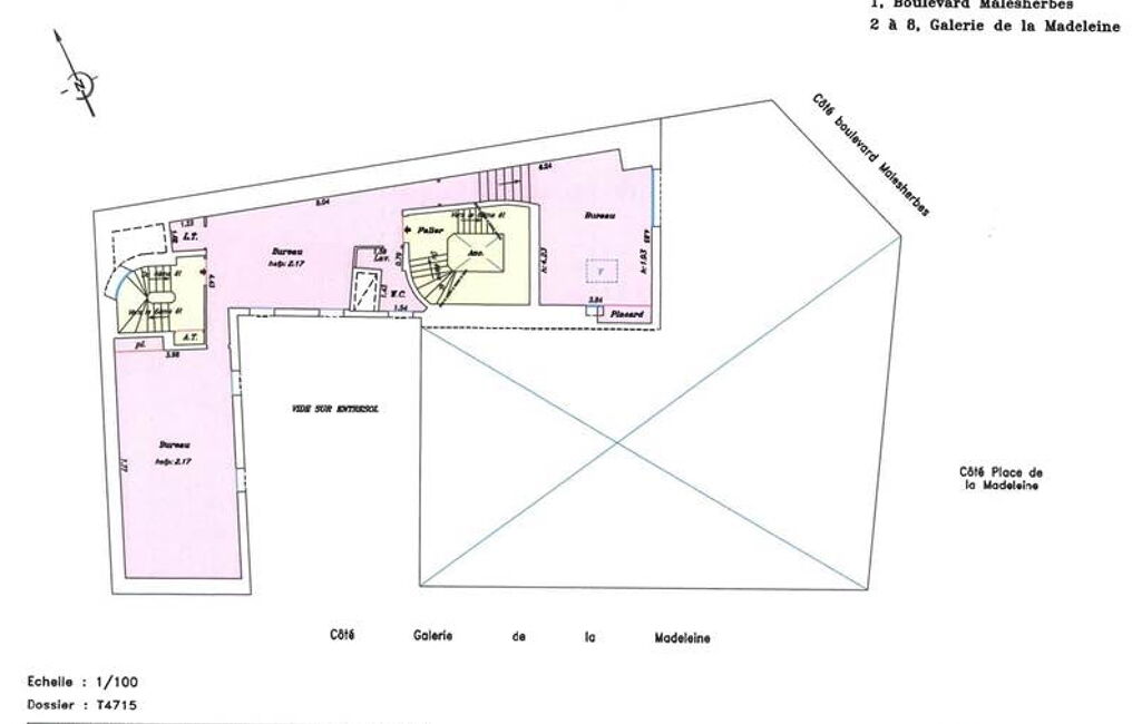
La Compagnie Immobilière de Paris vous propose à la location des bureaux situés boulevard Malesherbes, Place de la Madeleine.
D'une surface d'environ 82 m², au 5ᵉ étage sur cour, ils sont accessibles par ascenseur et se composent de trois espaces de travail : un accueil et deux bureaux principaux, avec un coin cuisine.
Les locaux disposent d'une climatisation collective, d'une chaudière individuelle gaz, de nombreux rangements et bénéficient d'une gardienne dans l'immeuble.
Disponibilité : 1er avril 2026.
Le loyer annuel est de 54 600 € HT/HC (soit 666 € HT/HC/m²/an), soumis à TVA.
Les provisions pour charges annuelles s'élèvent à 3 800 € HT.
Diffuze : votre prestataire de diffusion d'annonces immobilières
Mandat : 83-4087c107
Diagnostic de Performance Énergétique (DPE)
Plus d'informations
-
Descriptif
- Étage du bien : 5eme
- Ascenseur
- Nbre. d'étages : 6
- Nb. de pièces : 3
-
Conditions
- Charges : 316 €
-
Equipement
- Chauffage : gaz,individuel
-
Superficies
- Surface habitable : 82 m²
Localisation
Contactez nous
Pour plus d'informations sur cette annonce, n'hésitez pas à nous contacter