Vente
Appartement
à
Lormont
155 612 €
Lormont (33310)
iad France - Marc Franc (07 80 36 67 20) vous propose : OPPORTUNITÉ -T2 - Résidence 'HUBLINE' à LORMONT
Résidence « HUBLINE », entre nature et dynamisme, proximité de BORDEAUX.
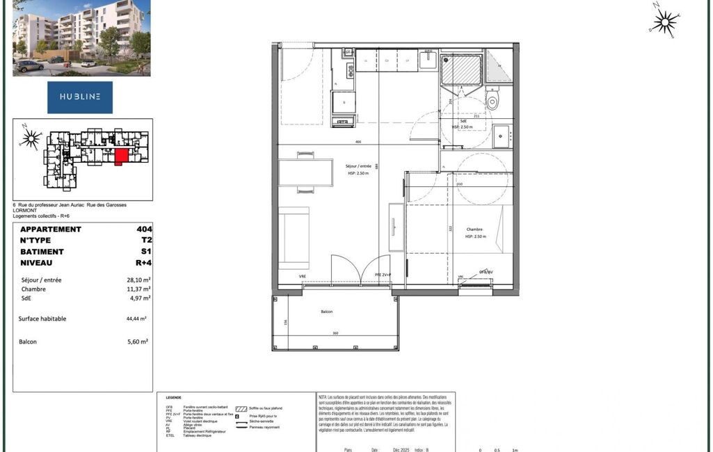
- 2 pièces de 44 m2 environ, R+4,
. 1 chambre,
. Balcon de 6 m2 environ,
. parking aérien
. frais de notaire estimés à 4400 euros en moyenne.
Vous l'avez rêvé, ne manquez pas de concrétiser votre projet, profitez de cette opportunité à LORMONT où se conjuguent douceur de vie et territoire attractif.
La résidence 'HUBLINE', logements lumineux et confortables, dans un cadre idéal où tout est pensé pour que vous puissiez jouir de logements aux nombreux avantages.
Règlementation Environnementale RE 2020, NF Habitat, HQE. Livraison prévisionnelle 4eme T 2027.
Mesure fiscale 5,5% TVA (Sous réserve de conditions d'éligibilité (notamment résidence principale - plafond de ressources - localisation du bien) une TVA à taux réduit de 5.5% est applicable conformément à l’article 278 sexies, III-2°)
Contactez-moi pour en savoir plus et réserver !
Honoraires d’agence à la charge du vendeur. Bien non soumis au DPE. Les informations sur les risques auxquels ce bien est exposé sont disponibles sur le site Géorisques : www.georisques.gouv.fr. La présente annonce immobilière a été rédigée sous la responsabilité éditoriale de M. Marc Franc EI (ID 83540), mandataire indépendant en immobilier (sans détention de fonds), agent commercial de la SAS I@D France immatriculé au RSAC de VANNES sous le numéro 931732952, titulaire de la carte de démarchage immobilier pour le compte de la société I@D France SAS.
Retrouvez tous nos biens sur notre site internet. www.iadfrance.fr
Mandat : 1937522-16
Diagnostic de Performance Énergétique (DPE)
Plus d'informations
-
Conditions
- Honoraires à charge de : vendeur
-
Descriptif
- Nb. de pièces : 2
-
Superficies
- Surface habitable : 44 m²
Localisation
Contactez nous
Pour plus d'informations sur cette annonce, n'hésitez pas à nous contacter