Vente
Appartement
à
Valras-Plage
293 500 €
Valras-Plage (34350)
iad France - Rita Paoli (06 64 86 47 63) vous propose : VALRAS PLAGE
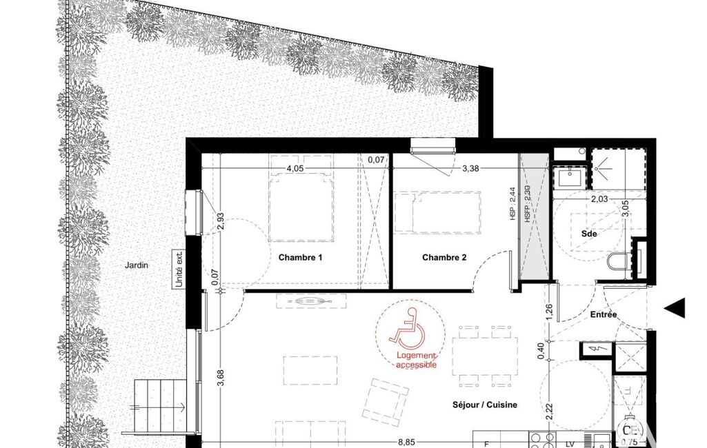
APPARTEMENT VEFA - T3 - RDC - PARKING - JARDIN
Haliotis, c’est une résidence sécurisée de 12 logements inspirée du coquillage nacré dont elle porte le nom, aux lignes modernes et harmonieuses.
Située au centre de Valras, à proximité immédiate des commerces et de la plage et profitant de son parking privatif et d’un local à vélo, son emplacement est idéal, en toutes saisons.
Avec une magnifique orientation rendant chaque logement agréable à vivre, Haliotis offre un maximum de lumière aux intérieurs et un ensoleillement garanti, tout en préservant l’intimité de ses occupants, grâce à ses brise vues et brise soleil rappelant le coquillage.
Les bâtiments sont conçus pour procurer à tous les logements un maximum de confort et de bien être en toute saison.
Vous pourrez choisir parmi un panel de typologie allant du T2 au T3 avec suite parentale, alliant confort et esthétisme et bénéficiant tous d’un extérieur agréable et de larges ouvertures sur l’extérieur.
Vous apprécierez le soin particulier apporté à ces logements qui sont à la fois esthétiques, confortables et fonctionnels.
Matériaux de qualité et harmonie des couleurs.
-Norme RE 2020
-Ascenseur et cage d’escalier carrelée
-Eclairage des parties communes par détecteurs de présence et ampoules LED
-Système d’interphone mural installé dans tous les appartements
-Isolation thermique selon prescription du BET, afin de limiter la consommation énergétique
-Menuiseries extérieures en aluminium, assurant une meilleure protection acoustique et thermique.
-Volets roulants électriques dans les pièces principales et dans les chambres
-Rangements intégrés et aménagés selon plan de l’architecte
Vous aurez également la possibilité de modifier certaines prestations.
Honoraires d’agence à la charge du vendeur. Bien non soumis au DPE. Les informations sur les risques auxquels ce bien est exposé sont disponibles sur le site Géorisques : www.georisques.gouv.fr. La présente annonce immobilière a été rédigée sous la responsabilité éditoriale de Mlle Rita Paoli EI (ID 57108), mandataire indépendant en immobilier (sans détention de fonds), agent commercial de la SAS I@D France immatriculé au RSAC de BEZIERS sous le numéro 502424195, titulaire de la carte de démarchage immobilier pour le compte de la société I@D France SAS.
Retrouvez tous nos biens sur notre site internet. www.iadfrance.fr
Mandat : 1958272-4
Diagnostic de Performance Énergétique (DPE)
Plus d'informations
-
Equipement
- Câble TV
- Digicode
- Placards
- Interphone
- Climatisation
-
Descriptif
- Ascenseur
- Nbre. d'étages : 2
- Nbre. de chambres : 2
- Nb. Parking : 1
- Nb. de pièces : 3
-
Etat
- Année de construction : 2026
-
Conditions
- Honoraires à charge de : vendeur
-
Superficies
- Surface habitable : 62 m²
Localisation
Contactez nous
Pour plus d'informations sur cette annonce, n'hésitez pas à nous contacter