Vente
Maison
à
Écouflant
494 000 €
Écouflant (49000)
iad France - Charlène Morinière vous propose: **Nouveau - Maison Neuve de 149m² avec 4 chambres, garage et jardin à Écouflant**
Découvrez cette superbe maison individuelle, conçue pour offrir un cadre de vie idéal aux futurs propriétaires.
Située à Écouflant, à seulement quelques minutes d'Angers, cette maison neuve de 2025 aux normes RE 2020 propose des prestations haut de gamme dans un environnement paisible et verdoyant.
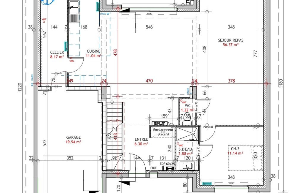
Au rez-de-chaussée, avec vie de plain-pied, vous serez charmé par un vaste séjour lumineux de 56.37m² avec une magnifique hauteur sous plafond et une cuisine ouverte de 11m², le tout donnant accès à la terrasse et au jardin. L'espace nuit se compose d'une chambre avec salle d'eau privative et wc séparé.
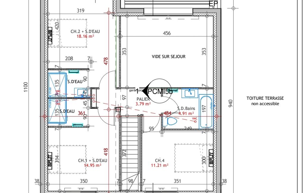
L'étage se compose de trois grandes chambres dont deux avec leur propre salle d'eau, une salle de bain et wc séparé.
L'extérieur de la maison dispose d'un jardin et d'une terrasse où vous pourrez profiter de moments de détente en plein air.
En annexes: un garage et un cellier idéal pour du stockage.
Les espaces ont été pensés pour offrir confort et fonctionnalité au quotidien.
Vous apprécierez la qualité des matériaux utilisés et les finitions soignées qui apportent une touche d'élégance à chaque pièce.
Cette maison neuve, prête à vous accueillir représente une opportunité rare à ne pas manquer à Écouflant.
Contactez-moi dès maintenant pour planifier une visite et découvrir votre futur chez-vous!
Honoraires d'agence à la charge du vendeur.
Information d'affichage énergétique sur ce bien : classe ENERGIE A indice 70 et classe CLIMAT A indice 6. Les informations sur les risques auxquels ce bien est exposé, y compris l'obligation légale de débroussaillement, sont disponibles sur le site Géorisques : http://www.georisques.gouv.fr.
La présente annonce immobilière a été rédigée sous la responsabilité éditoriale de Mme Charlène Morinière mandataire indépendant en immobilier (sans détention de fonds), agent commercial de la SAS I@D France immatriculé au RSAC de ANGERS sous le numéro 897584975, titulaire de la carte de démarchage immobilier pour le compte de la société I@D France SAS.
Mandat : 1939905
Diagnostic de Performance Énergétique (DPE)
Plus d'informations
-
Descriptif
- Nbre. d'étages : 1
- Nbre. de chambres : 4
- Nb. de pièces : 5
-
Equipement
- Câble TV
- Climatisation
-
Superficies
- Superficie terrain : 520 m²
- Surface habitable : 149 m²
-
Etat
- Année de construction : 2025
-
Conditions
- Honoraires à charge de : vendeur
Localisation
Contactez nous
Pour plus d'informations sur cette annonce, n'hésitez pas à nous contacter