Vente
Maison
à
Chassieu
490 000 €
Chassieu (69680)
iad France - Caroline Cousina vous propose: NOUVEAUTE EN EXCLUSIVITE
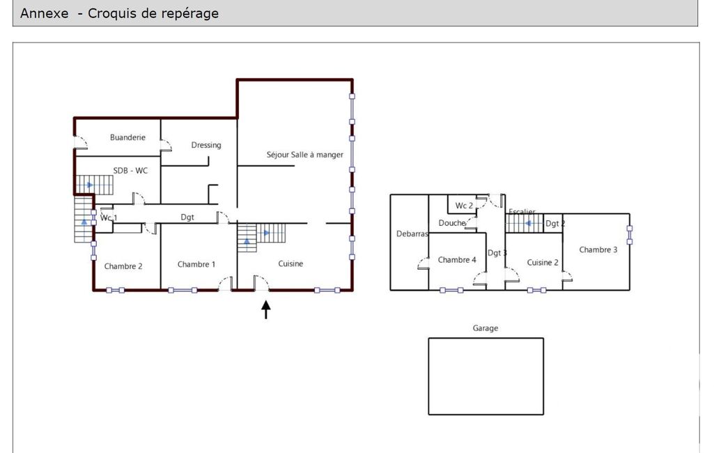
Chassieu-le-Haut – Au cOEur d’un secteur très recherché non loin de l'église St Galmier, découvrez cette superbe bâtisse des années 1900, pleine de charme et de caractère, désormais organisée en une petite copropriété (3 habitations).
Ce bien rare à la vente propose 200 m² de surface habitable sur 2 niveaux plus un joli jardin et se distingue par son espace, sa luminosité et son potentiel.
**Rez-de-chaussée : de superbes volumes et une belle luminosité**
-Une très belle pièce de vie de presque 50m² extrêmement lumineuse grâce à de grandes baies vitrées regroupant un salon, une salle à manger et un coin bureau.
-Une cuisine fermée (23m²) avec un accès direct sur le jardin arboré de 180m², parfait pour profiter des beaux jours dans un transat dans l’herbe ou à l’ombre sur la terrasse.
-Deux chambres de 15 et 16m².
-Une salle de bains et un WC indépendant.
-Un espace rangement, dressing, buanderie et cellier, très pratique au quotidien.
**Étage : espace indépendant ou familial selon vos besoins**
-Deux très grandes chambres.
-Une salle d’eau et un WC indépendant.
-Un espace cuisine, idéal pour la location courte durée ou pour accueillir un adolescent/étudiant en autonomie ou bien devenir un bureau ou une salle de jeux.
-un accès indépendant via un escalier extérieur à l’arrière de la bâtisse.
Cet étage a déjà été loué en courte durée à des étudiants, ce qui permet éventuellement d’envisager un usage mixte habitation + revenus locatifs.
**Côté pratique**
- Un garage dans la cour arrière de la bâtisse.
- Une place de stationnement privative.
-Chauffage individuel au gaz.
-Très petite copropriété : 3 habitations dans la bâtisse .
- Emplacement recherché, à proximité des commodités, transports et écoles.
A visiter sans tarder !!
La presente annonce immobiliere vise 4 lots situés dans une copropriété de 15 lots au total et ne faisant l'objet d'aucune procédure en cours citée à l'article L. 721-1 du code de la construction et de l'habitation. Montant moyen mensuel de charges déclaré par le vendeur : 0€ par mois (soit 0 € annuel). Honoraires d'agence à la charge du vendeur.
Information d'affichage énergétique sur ce bien : classe ENERGIE D indice 192 et classe CLIMAT D indice 41. Les informations sur les risques auxquels ce bien est exposé, y compris l'obligation légale de débroussaillement, sont disponibles sur le site Géorisques : http://www.georisques.gouv.fr.
La présente annonce immobilière a été rédigée sous la responsabilité éditoriale de Mme Caroline Cousina mandataire indépendant en immobilier (sans détention de fonds), agent commercial de la SAS I@D France immatriculé au RSAC de Lyon sous le numéro 879997435, titulaire de la carte de démarchage immobilier pour le compte de la société I@D France SAS.
Mandat : 1943151
Diagnostic de Performance Énergétique (DPE)
Plus d'informations
-
Descriptif
- Terrasse
- Nbre. d'étages : 2
- Nbre. de chambres : 4
- Nb. de pièces : 6
-
Loi ALUR
- Copropriété
- Nombre de lots de la copropriété : 15
-
Superficies
- Superficie terrain : 178 m²
- Surface habitable : 200 m²
-
Equipement
- Chauffage : gaz radiateur
-
Conditions
- Honoraires à charge de : vendeur
Localisation
Contactez nous
Pour plus d'informations sur cette annonce, n'hésitez pas à nous contacter