Vente
Duplex
à
Châteauneuf-Grasse
914 000 €
Châteauneuf-Grasse (06740)
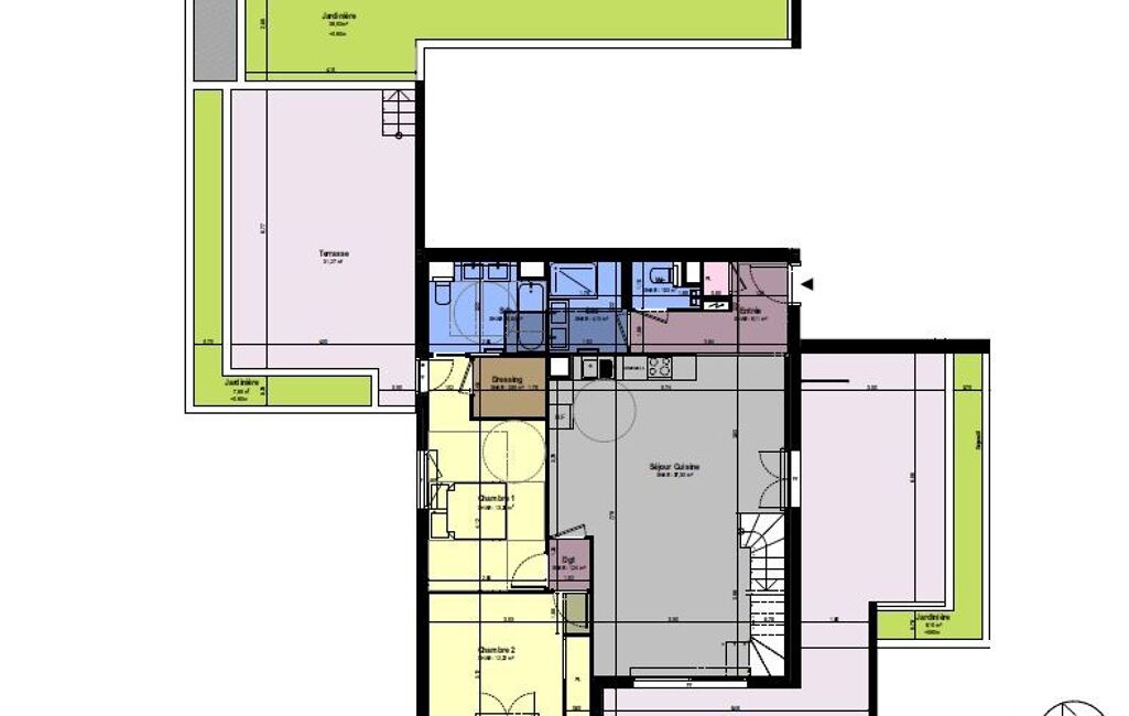
iad France - Cyril Fournier (06 34 26 49 62) vous propose : À VENDRE – Élégant T4 105M2 environ avec vue dégagée sur un parcours de golf
Niché dans un quartier résidentiel paisible et verdoyant, ce duplex de standing bénéficie d’un emplacement privilégié face à un golf, offrant un panorama exceptionnel et un cadre de vie rare.
Des volumes généreux et une belle luminosité
• Pièce de vie spacieuse avec cuisine ouverte, baignée de lumière naturelle
• Accès direct à une grande terrasse ensoleillée avec vue dégagée sur les fairways
• Quatre chambres confortables dont une suite parentale avec salle d’eau
• Deux salles de bains équipées, WC indépendants
• Prestations soignées : carrelage grand format, double vitrage, volets motorisés, climatisation réversible
• Espaces de rangement optimisés
Un environnement d’exception
• Résidence confidentielle avec piscine et espaces verts paysagers
• Ambiance calme, entourée de nature et de résidences de standing
• Terrasse extérieure aménagée (prise, robinet, éclairage) idéale pour recevoir ou se détendre
Un emplacement stratégique
• Accès rapide aux communes voisines : Valbonne, Mougins, Opio
• À quelques minutes en voiture de Sophia-Antipolis et de l’autoroute
• Proche du club house, restaurants, commerces de proximité
Un bien unique au cOEur d’un environnement golfique recherché, alliant confort moderne, espace et sérénité.
Honoraires d’agence à la charge du vendeur. Bien non soumis au DPE. Les informations sur les risques auxquels ce bien est exposé sont disponibles sur le site Géorisques : www.georisques.gouv.fr. La présente annonce immobilière a été rédigée sous la responsabilité éditoriale de M. Cyril Fournier EI (ID 57751), mandataire indépendant en immobilier (sans détention de fonds), agent commercial de la SAS I@D France immatriculé au RSAC de Cannes sous le numéro 751452475, titulaire de la carte de démarchage immobilier pour le compte de la société I@D France SAS.
Retrouvez tous nos biens sur notre site internet. www.iadfrance.fr
Mandat : 1710249-16
Diagnostic de Performance Énergétique (DPE)
Plus d'informations
-
Descriptif
- Étage du bien : 2eme
- Nb. de pièces : 4
-
Conditions
- Honoraires à charge de : vendeur
-
Superficies
- Surface habitable : 105 m²
Localisation
Contactez nous
Pour plus d'informations sur cette annonce, n'hésitez pas à nous contacter