Vente
Appartement
à
Créteil
230 000 €
Créteil (94000)
iad France - Henri Dupin vous propose: Appartement 3 pièces avec terrasse, parking et cave – Proche UPEC à Créteil
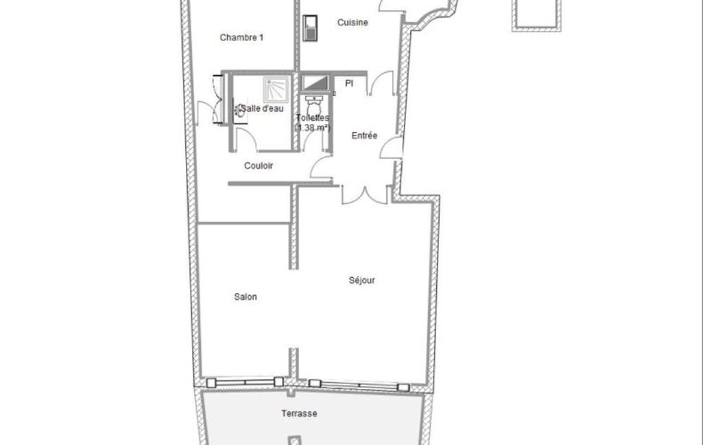
À deux pas de l’Université Paris-Est Créteil (UPEC), du centre commercial du Palais et à seulement 7 minutes à pied du métro 'Université' (ligne 8), découvrez ce bel appartement 3 pièces de 71,5 m² situé au 1er étage d’une résidence sécurisée avec ascenseur, dont le ravalement est en cours de finalisation.
Il se compose d’un séjour lumineux ouvrant sur une grande terrasse exposée sud, d’une cuisine séparée équipée, d’une chambre spacieuse et d’un salon pouvant être transformé en seconde chambre. Une salle d’eau, un WC séparé, une entrée avec rangements et une cave complètent l’ensemble.
Chauffage collectif urbain, fibre optique et stationnement privatif en sous-sol viennent renforcer le confort de ce bien.
Idéal pour un premier achat, un couple, une petite famille ou un investisseur recherchant un emplacement stratégique au cOEur de Créteil.
Avantage :
- Ravalement réalisé en 2025/26
- Grande terrasse exposée sud
- Grand séjour
- Place de stationnement au sous-sol
- Proximité du Métro 8 université
- Proximité des commerces
- Proximité des écoles
La presente annonce immobiliere vise 3 lots situés dans une copropriété de 849 lots au total et ne faisant l'objet d'aucune procédure en cours citée à l'article L. 721-1 du code de la construction et de l'habitation. Montant moyen mensuel de charges déclaré par le vendeur : 319.06€ par mois (soit 3828.76 € annuel). Honoraires d'agence à la charge de l'acquéreur. Prix honoraires inclus : 230000 euros. Prix hors honoraires : 220000 euros. Honoraires TTC à la charge de l'acquéreur (4,55% du prix du bien hors honoraires) : 10000 euros.
Information d'affichage énergétique sur ce bien : classe ENERGIE D indice 232 et classe CLIMAT C indice 16. Les informations sur les risques auxquels ce bien est exposé, y compris l'obligation légale de débroussaillement, sont disponibles sur le site Géorisques : http://www.georisques.gouv.fr.
La présente annonce immobilière a été rédigée sous la responsabilité éditoriale de M Henri Dupin mandataire indépendant en immobilier (sans détention de fonds), agent commercial de la SAS I@D France immatriculé au RSAC de CRETEIL sous le numéro 418169611, titulaire de la carte de démarchage immobilier pour le compte de la société I@D France SAS.
Mandat : 1774104
Diagnostic de Performance Énergétique (DPE)
Plus d'informations
-
Descriptif
- Cave
- Étage du bien : 1er
- Terrasse
- Ascenseur
- Nbre. d'étages : 7
- Nbre. de chambres : 1
- Nb. de pièces : 3
-
Loi ALUR
- Copropriété
- Nombre de lots de la copropriété : 849
- Moyenne de la quote part(an) : 3 828.76 €
-
Etat
- Année de construction : 1974
-
Conditions
- Honoraires à charge de : vendeur
-
Superficies
- Surface habitable : 72 m²
Localisation
Contactez nous
Pour plus d'informations sur cette annonce, n'hésitez pas à nous contacter