Vente
Appartement
à
Concarneau
294 000 €
Concarneau (29900)
iad France - Ségolène Helouis vous propose: Centre-ville et littoral accessibles à pied pour ce bel appartement en duplex, au dernier étage avec ascenseur.
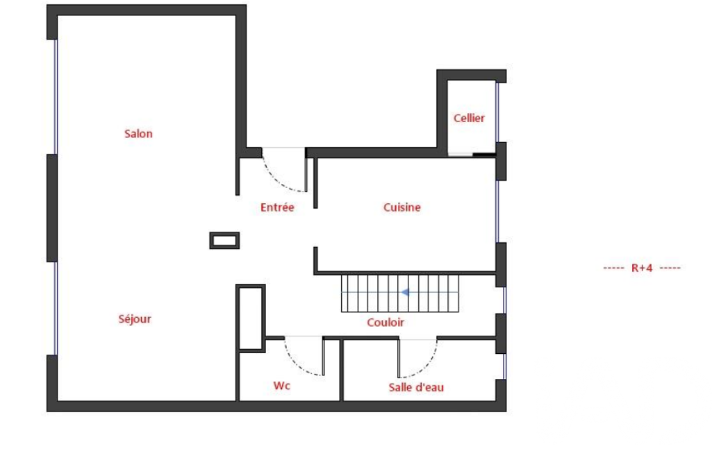
Il comprend un salon, une salle à manger, une cuisine, une buanderie, des toilettes et une salle de bain.
À l’étage, l’espace nuit se compose de deux chambres.
L’appartement dispose également d’un balcon avec vue dégagée, idéal pour profiter des beaux jours.
Une cave complète ce bien.
Un emplacement recherché, une distribution fonctionnelle et un cadre de vie privilégié à deux pas des commodités et du littoral.
La presente annonce immobiliere vise 2 lots situés dans une copropriété de 20 lots au total et ne faisant l'objet d'aucune procédure en cours citée à l'article L. 721-1 du code de la construction et de l'habitation. Montant moyen mensuel de charges déclaré par le vendeur : 160€ par mois (soit 1920 € annuel). Honoraires d'agence à la charge de l'acquéreur. Prix honoraires inclus : 294000 euros. Prix hors honoraires : 280000 euros. Honoraires TTC à la charge de l'acquéreur (5,00% du prix du bien hors honoraires) : 14000 euros.
Information d'affichage énergétique sur ce bien : classe ENERGIE D indice 177 et classe CLIMAT D indice 38. Les informations sur les risques auxquels ce bien est exposé, y compris l'obligation légale de débroussaillement, sont disponibles sur le site Géorisques : http://www.georisques.gouv.fr.
La présente annonce immobilière a été rédigée sous la responsabilité éditoriale de Mme Ségolène Helouis mandataire indépendant en immobilier (sans détention de fonds), agent commercial de la SAS I@D France immatriculé au RSAC de QUIMPER sous le numéro 850577487, titulaire de la carte de démarchage immobilier pour le compte de la société I@D France SAS.
Mandat : 1942182
Diagnostic de Performance Énergétique (DPE)
Plus d'informations
-
Descriptif
- Cave
- Ascenseur
- Nbre. d'étages : 5
- Nbre. de chambres : 2
- Nb. de pièces : 4
-
Loi ALUR
- Copropriété
- Nombre de lots de la copropriété : 20
- Moyenne de la quote part(an) : 1 920 €
-
Conditions
- Honoraires à charge de : vendeur
-
Superficies
- Surface habitable : 74 m²
Localisation
Contactez nous
Pour plus d'informations sur cette annonce, n'hésitez pas à nous contacter