Vente
Maison
à
Leucate
988 000 €
Leucate (11370)
iad France - Hamel Lahcini vous propose: Magnifique domaine de 7 pièces à Leucate Village – 186 m² habitable sur 1 080 m² de terrain. Vue dégagée !!!
Découvrez cette charmante maison de 7 pièces, située à Leucate Village. Édifiée sur un terrain de 1 080 m², elle bénéficie d’un environnement calme tout en restant à proximité des commodités, à mi‑chemin entre la lagune et la mer Méditerranée.
De beaux volumes et des prestations de qualité :
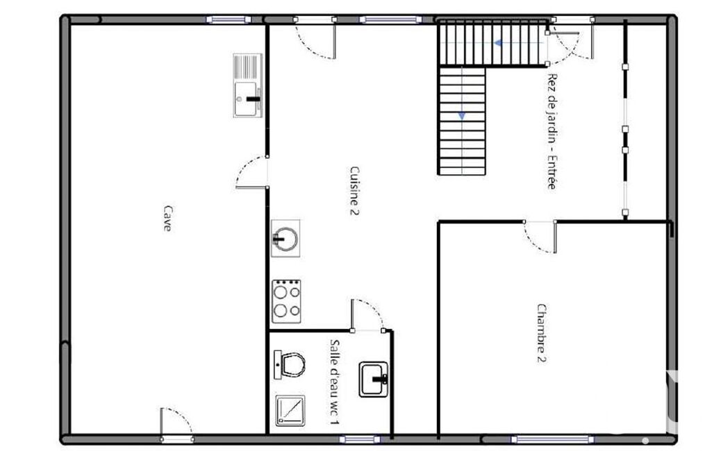
Au rez‑de‑chaussée, une entrée mène à un spacieux salon ainsi qu’à une salle à manger ouverte sur une cuisine aménagée et équipée. Une buanderie avec adoucisseur d'eau ainsi qu’une mezzanine complètent cet espace convivial. Vous disposerez également d’une suite parentale avec salle d'eau et WC séparés.
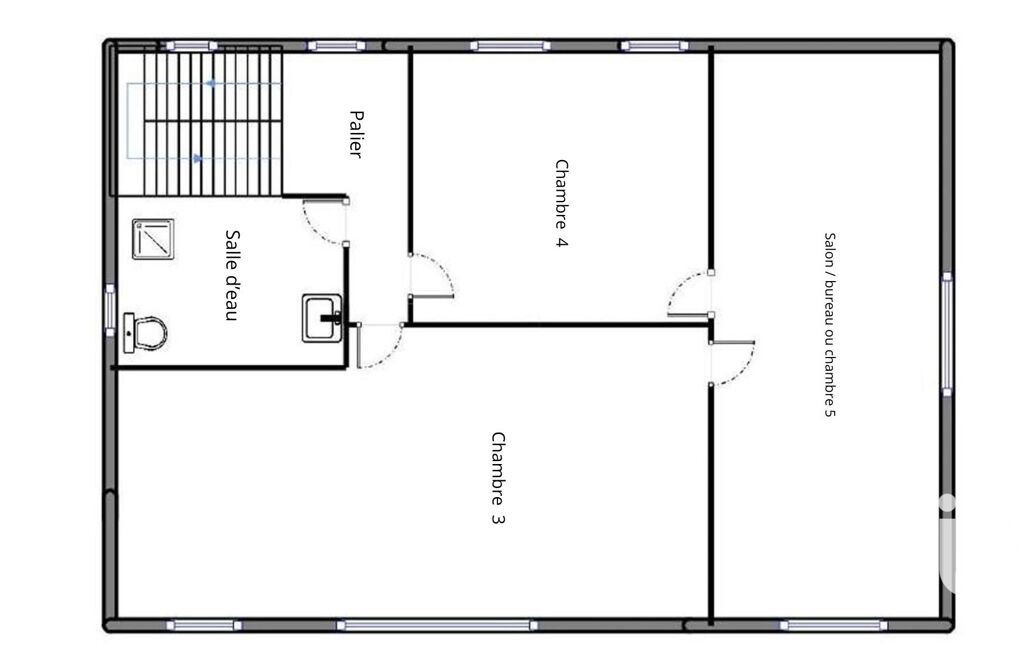
À l’étage, un couloir dessert trois belles chambres ainsi qu’une salle d'eau , baignoire avec WC.
À l’extérieur, la propriété bénéficie d’une terrasse accueillante, d’une piscine, d’un cabanon ainsi que d’un garage avec mezzanine et de quatre places de stationnement.
Construite avec des matériaux de qualité tels que des poutres apparentes, du parquet et du double vitrage, cette maison bénéficie de prestations soignées garantissant confort optimal tout au long de l’année. Elle est équipée de la climatisation réversible, d’une pompe à chaleur, d’un poêle à bois, d’une cheminée ainsi que d’un système d’alarme.
Ce bien rare, à la fois chaleureux et fonctionnel, conviendra parfaitement à une résidence principale comme à un investissement locatif de standing.
Contactez nous dès aujourd'hui pour organiser une visite et découvrir tout le potentiel de cette maison !
Honoraires d'agence à la charge du vendeur.
Information d'affichage énergétique sur ce bien : classe ENERGIE C indice 118 et classe CLIMAT A indice 3. Les informations sur les risques auxquels ce bien est exposé, y compris l'obligation légale de débroussaillement, sont disponibles sur le site Géorisques : http://www.georisques.gouv.fr.
La présente annonce immobilière a été rédigée sous la responsabilité éditoriale de Mme Hamel Lahcini mandataire indépendant en immobilier (sans détention de fonds), agent commercial de la SAS I@D France immatriculé au RSAC de narbonne sous le numéro 750972572, titulaire de la carte de démarchage immobilier pour le compte de la société I@D France SAS.
Mandat : 1792158
Diagnostic de Performance Énergétique (DPE)
Plus d'informations
-
Superficies
- Superficie terrain : 1080 m²
- Surface habitable : 186 m²
-
Etat
- Année de construction : 1999
-
Conditions
- Honoraires à charge de : vendeur
-
Descriptif
- Nb. de pièces : 7
Localisation
Contactez nous
Pour plus d'informations sur cette annonce, n'hésitez pas à nous contacter