Vente
Local commercial
à
Mantes-la-Ville
990 000 €
Mantes-la-Ville (78711)
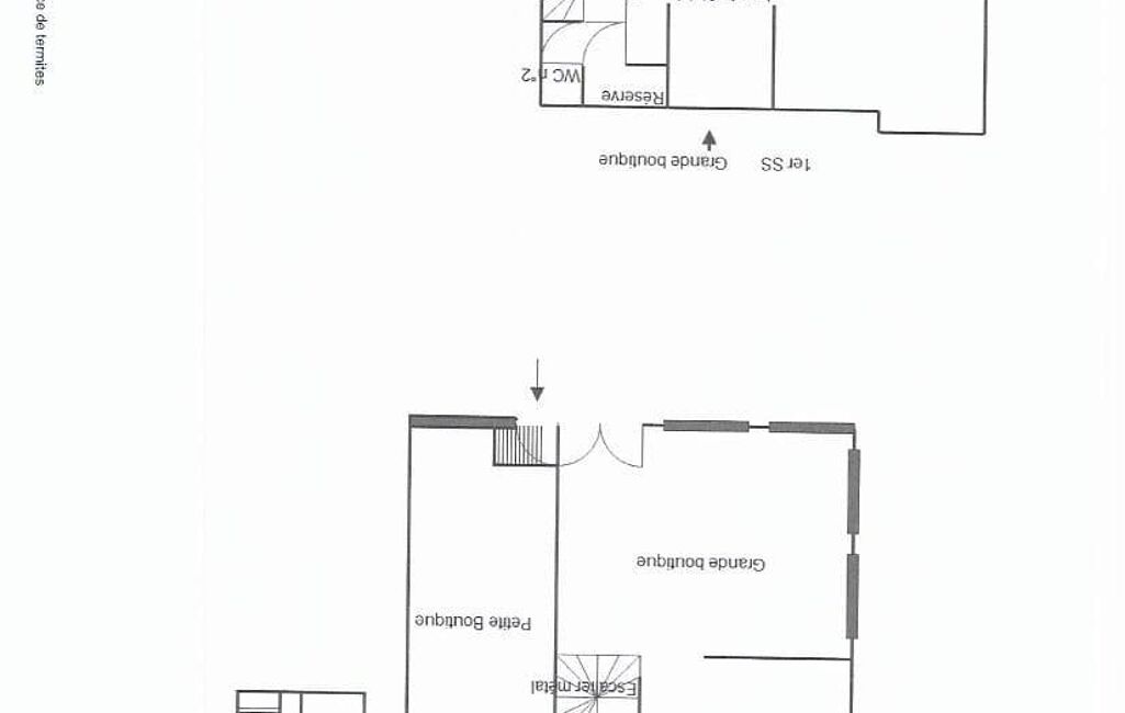
iad France - Maxim Jodon (07 81 32 50 71) vous propose : EN EXCLUSIVITE– Local Commercial de 1 200 m² environ
Idéal investisseur ou entreprise souhaitant s’implanter dans une zone dynamique, ce local commercial de 1 200 m² environ situé à Mantes-la-Ville offre un ensemble immobilier complet, polyvalent et en très bon état.
Au sein d’une copropriété dans la zone d’activités de la Vaucouleurs, découvrez cette structure à fort potentiel, qui peut être divisée en plusieurs entreprises, selon vos projets.
Caractéristiques principales :
Hangar spacieux avec grande hauteur sous plafond, sur 1 étage, idéal pour stockage ou activité industrielle, chaînes de production, vente de véhicules…
Plusieurs pièces pour atelier, rangements.
Bureaux entièrement rénovés à neuf, lumineux et fonctionnels, répartis sur plusieurs espaces de travail.
Sous-sol aménagé de 200 m² environ, parfait pour archives, stockage complémentaire ou espace technique.
Accès poids lourds, grandes ouvertures et facilité de circulation.
Plusieurs stationnements disponibles sur place.
Atouts supplémentaires :
Proximité des axes routiers principaux (A13, N13)
À quelques minutes de la gare SNCF de Mantes-la-Jolie
Situé en zone d’activité attractive, avec fort potentiel de développement
Ne ratez pas cette opportunité rare d’acquérir un local prêt à l’emploi dans l’ouest parisien.
Contactez-moi pour organiser une visite ou obtenir plus d’informations.
Le bien associé à cette annonce est non soumis au DPE.La présente annonce immobilière a été rédigée sous la responsabilité éditoriale de M. Maxim Jodon (ID 88292), Agent Commercial mandataire en immobilier immatriculé au Registre Spécial des Agents Commerciaux (RSAC) du Tribunal de Commerce de VERSAILLES sous le numéro 944541812
Retrouvez tous nos biens sur notre site internet. www.iadfrance.fr
Mandat : 1748791
Diagnostic de Performance Énergétique (DPE)
Plus d'informations
-
Conditions
- Honoraires à charge de : vendeur
-
Superficies
- Surface habitable : 1200 m²
Localisation
Contactez nous
Pour plus d'informations sur cette annonce, n'hésitez pas à nous contacter