Location
Appartement
à
Marseille
1 190 € CC /mois
Marseille (13008)
iad France - Yoann Lonchamp vous propose: LOCATION MEUBLEE
BONNEVEINE
Dans une résidence bien entretenue, au coeur du quartier de Bonneveine, au carrefour de toutes les commodités:
- Commerces ( 100 m)
- écoles (50 m)
- Parc Borély (150 m)
- Plages (500 m)
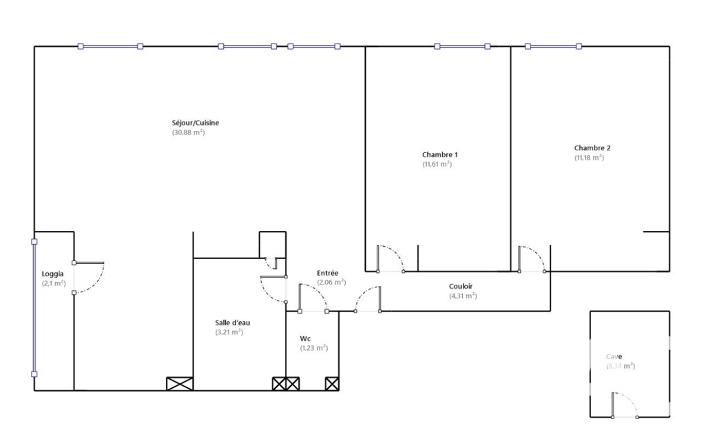
T3 au premier étage sans ascenseur entièrement rénové. Il se compose: d'un grand séjour exposé au Sud-Est avec cuisine équipée ouverte (>30m2) et loggia, une salle d'eau, un WC séparé et deux chambres avec placards (>11 m2).
- Cave en sous-sol (8m2)
- Stationnement libre dans la résidence fermée
Vous apprécierez la facilité du vie du quartier et l'agencement idéal de ce bel appartement.
Meubles:
- vaisselle
- table + 4 chaises
- canapé convertible
- un lit double avec sommier et matelas fourni
Chauffage: électrique + climatisation
Frais d'agence: 580€
Dossier à transmettre via la plateforme zelok.fr.
A votre disposition pour convenir d'une visite
Information d'affichage énergétique sur ce bien : classe ENERGIE D indice 185 et classe CLIMAT D indice 5. Les informations sur les risques auxquels ce bien est exposé, y compris l'obligation légale de débroussaillement, sont disponibles sur le site Géorisques : http://www.georisques.gouv.fr.
La présente annonce immobilière a été rédigée sous la responsabilité éditoriale de M Yoann Lonchamp mandataire indépendant en immobilier (sans détention de fonds), agent commercial de la SAS I@D France immatriculé au RSAC de MARSEILLE sous le numéro 893148650, titulaire de la carte de démarchage immobilier pour le compte de la société I@D France SAS. Location meublée. Montant du loyer mensuel charges comprises : 1190.00 euros / mois. Provision mensuelle avec récupération annuelle : 70.00 euros / mois. Zone soumise à encadrement : non. Dépôt de garantie : 2240 euros. Honoraires TTC à la charge du locataire: 650 euros (soit 10€/m²).
Mandat : 1972546
Diagnostic de Performance Énergétique (DPE)
Plus d'informations
-
Equipement
- Câble TV
- Digicode
- Placards
- Chauffage : individuel electrique radiateur
- Interphone
-
Descriptif
- Meublé
- Nbre. de chambres : 2
- Nb. de pièces : 3
-
Conditions
- Charges : 70 €
- Honoraires : 650 €
-
Superficies
- Surface habitable : 64 m²
Localisation
Contactez nous
Pour plus d'informations sur cette annonce, n'hésitez pas à nous contacter